Regeneration of the Parizhskaya Kommuna (Paris Commune) Factory Area in Vyshny Volochyok
Address
                        Town of Vyshny Volochyok, Tver Region
                        Designed
                        2010
                        Plot Area
                        11,44 ha (111 353 sq. m)
                        Built-Up Area
                        28 880 sq. m
                        Including: 
                            buildings preservation
                            12 220 sq. m
                            new construction
                            16 660 sq. m
                            Head of the Authors Team
                Evgeny Gerasimov
                Chief Project Architect
                S. Merkusheva
                Architects
                E. Goryunova, R. Pak, A. Smorygin
                Description
Venice Biennale of Architecture 2010, exposition of the Russian Pavilion
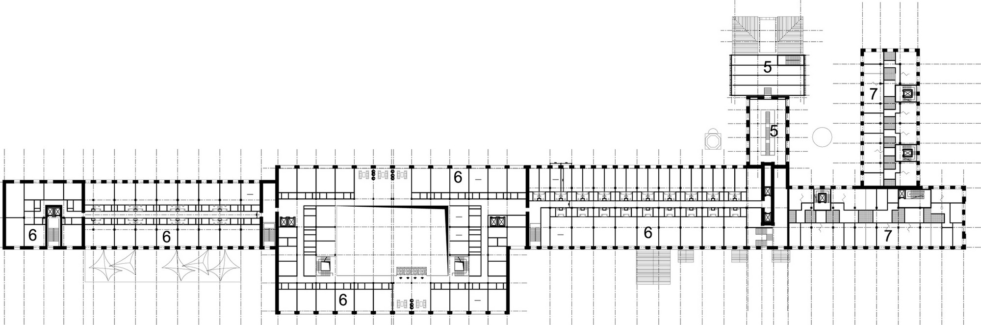
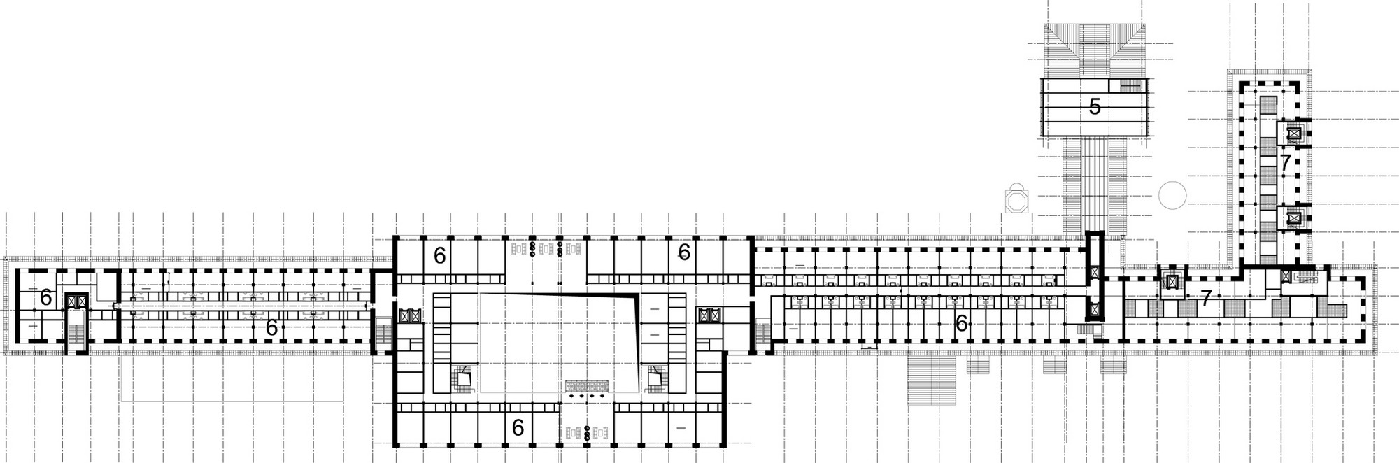
The Russia Factory project created for the 12 th Venice Biennale of Architecture included Parizhskaya Kommuna (Paris Commune) Factory regeneration project, according to which the factory site was to accommodate a conference centre and hotel, residential premises, and an art school with a concert and exhibition hall .
References in Media
                Honorary mention by Minister of Cultural Affairs for the Russian exposition in Venice
                                    Evgeny Gerasimov was honorary mentioned by Minister of Cultural Affairs  in Moscow on March 31 2011 for the successful management of the Russian  exposition on the XII Architectural Biennale in Venice.
                                    Read more
                                Lace Patterns of the Future
                                     Parizhskaya Komunna (Paris Commune) Factory in Vyshny Volochyok goes to the Evgeny Gerasimov and Partners Architectural Workshop. The architects have designed the territory to accommodate a conference centre, a hotel, some residential premises, and an art school. 
                                    Read at Archi.ru
                                Biennale di Venezia - 12th International Architecture Exhibition
                                    Grand opening of the exposition of the pavilion of Russia - the Project "Factory Russia" realized by its curators Sergey Tchoban, Georgy Revzin and Pavel Khoroshilov took place on the 26th of August 2010 in 3.30 p.m.
                                    Read more
                                Awards
                Honorary mention by Minister of Cultural Affairs. For successful management of Russian exposition on the XII Architectural Biannale in Venice
Next Project
                            
                         
                                                
                                             
                                                
                                             
                                                
                                             
                                                
                                             
                                                
                                             
                                                
                                             
                                                
                                             
                                                
                                             
                                                
                                             
                                                
                                             
                                                
                                             
                                                
                                             
                                                
                                             
                                                
                                             
                                                
                                             
                                                
                                             
                                                
                                             
                                                
                                             
                                                
                                             
                                                
                                             
                                                
                                             
                                                
                                             
                                                
                                             
                                                
                                             
                                                
                                             
                                                
                                             
                                                
                                             
                                                
                                             
                                                
                                            