Office and Residential Complex on Kovensky lane

Project Owners
OAO Stroitelnaya Korporatsiya Vozrozhdenie Sankt Peterburga (Vozrozhdenie Sankt Peterburga Construction Corporation)
Address
5 Kovensky lane, Saint Petersburg
Designed
2007-2012
Constructed
2011-2013
Plot Area
3 866 sq. m
Built-Up Area
3 654 sq. m
Gross Internal Area
14 894 sq. m
Number of Storeys
5–7 storeys
Number of Apartments
8
Head of the Authors Team
Evgeny Gerasimov
Chief Project Architect
Z. Petrova
Architects
E. Reznikova (Leader of the Architects Group), O. Manov, M. Orlova-Sheyner, A. Gvozdik
Chief Structural Engineer
M. Reznichenko
Structural Engineers
N. Alexeeva (Leader of the Structural Engineers Group), T. Belova, M. Inger, D. Astapchik, A. Koblov, T. Lebedeva
General Layout
Ye. Kuznetsova, A. Titova
Utilities

Advance-I Company

Chief Project Utility Engineer
N. Grazhdanova
Photos
A. Naroditsky
Architectural Model
Yu. Senatorov

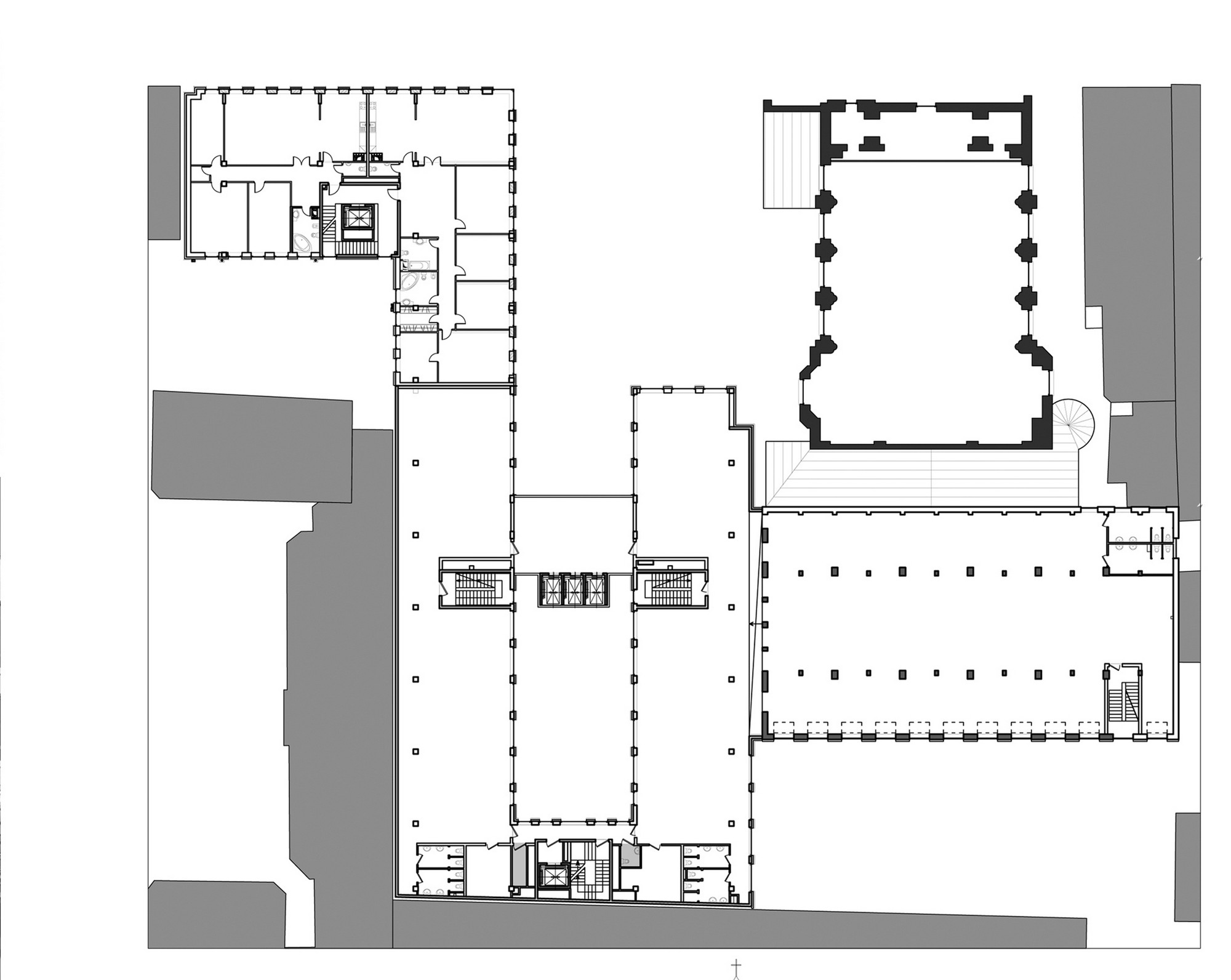
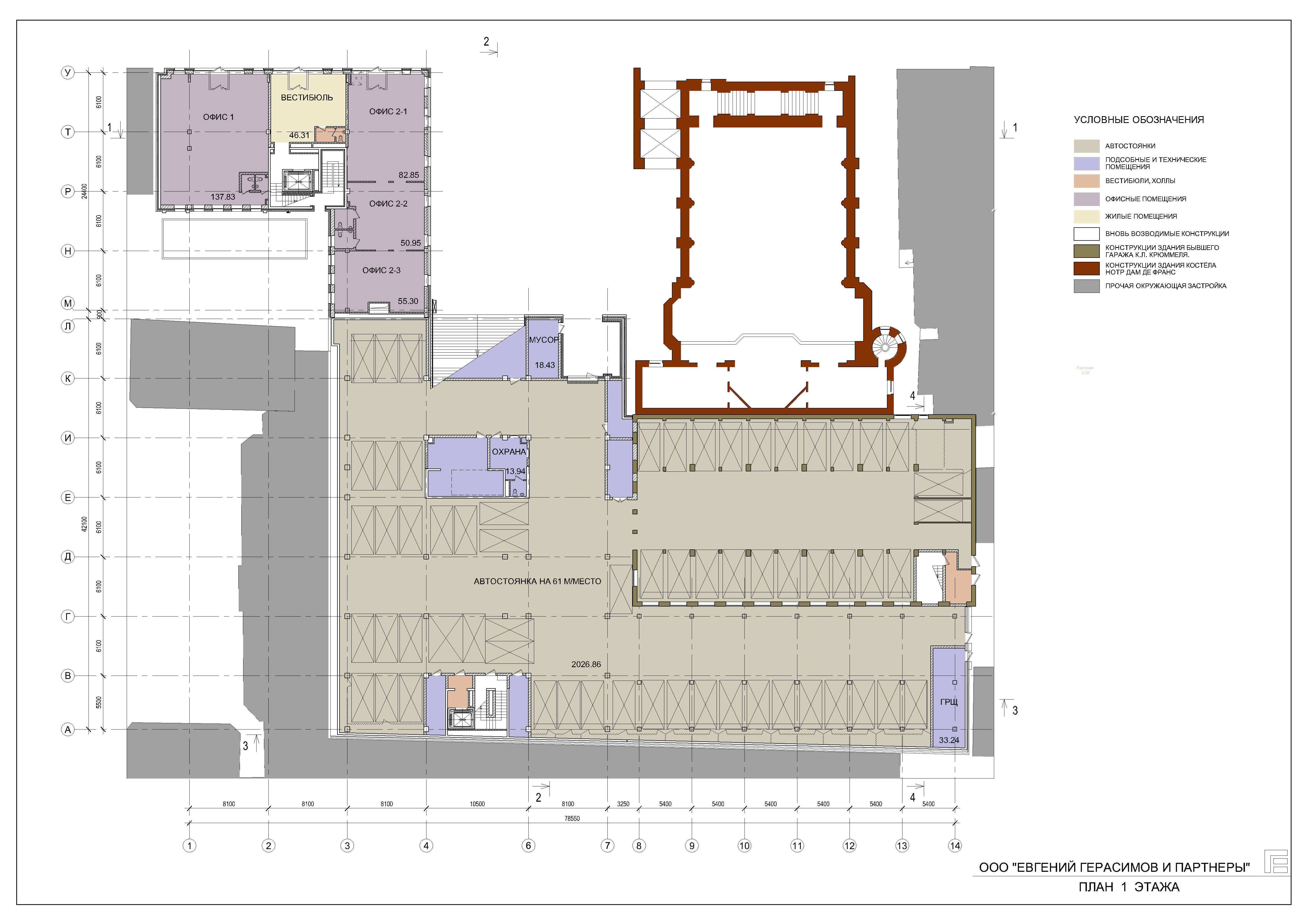
Description

The architectural solution of the object is due to the neighborhood with the church of the Virgin Maid of Lourdes - an architectural monument of federal significance. The appearance of the house is conceived as a quiet background for the church, a kind of setting for a precious stone.

Read More
References in Media
Tatlin Plan #22. Residental complex at Kovensky lane
open
EUROPE EXCELS WITHIN THE INTERNATIONAL PROPERTY AWARDS
Evgeny Gerasimov and Partners were a recipient of a Highly Commended award for Architecture Multiple Residence category with Residential complex on Kovensky lane for Russia.
Read more
XIX International Exhibition of Architecture and Design Arch Moscow
In 2014 the XIX International Exhibition of Architecture and Design Arch Moscow is going to take place from May 21 till May 25, in parallel with 4th Moscow Biennale of Architecture.
Read more
Awards

Diploma of «High Quality Architecture» magazine 2014. For the creative contribution in Russian high-quality architecture development

International Property Awards 2014. 'Highly Commended', Multiple Residence, Russia

Third-grade diploma of Saint Petersburg festival of the Union of architects of Russia «Arkhitekton». Pieces of architecture for 2012-2013 contest, Building section

Eurazian Prize 2014-2015 on the XII International Festival of Architecture and Design in Ekaterinburg, Russia. Residential Architecture