Жилой комплекс «Царская столица»

Заказчики
ЗАО «СПб МФТЦ»
Адрес
Санкт-Петербург, Невский проспект, 85
Проектирование
2011-2016
Строительство
2012-2016
Площадь участка
32 162 кв. м
Площадь застройки
12 553 кв. м
Общая площадь
92 721 кв. м
Этажность
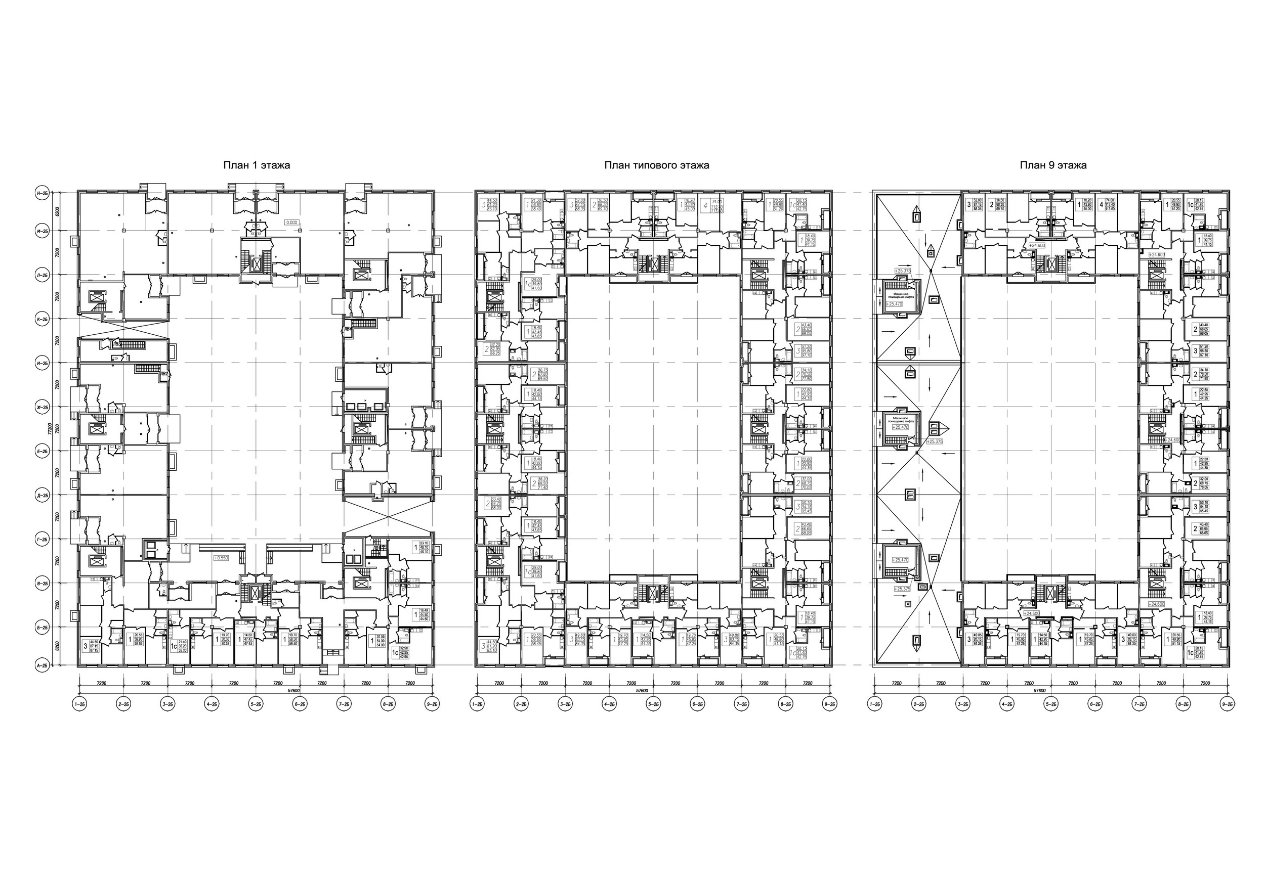
7+1 этаж
Количество квартир
741
1 очередь (выше)
2 очередь (ниже)
Площадь участка
58 950 кв. м
Площадь застройки
26 475 кв. м
Общая площадь зданий
220 118 кв. м
Этажность
8, 9, 10 + 1 этаж
Количество квартир
1 867
3 очередь
Площадь участка
40269 кв. м
Площадь застройки
16891.84 кв. м
Этажность
7-8-9-10-11 этажей
Количество квартир
1046
4 очередь
Площадь участка
29951 кв. м
Площадь застройки
7628.8 кв. м
Общая площадь
65341.9 кв. м
Этажность
7-8-9-10-11-12 этажей
Количество квартир
411
Руководитель коллектива
Евгений Львович Герасимов
ГАП
А.А. Юдин
Архитекторы
О.Я. Ольшанская (рук. группы), Н.П. Безбородова (рук. группы), И.В. Припоров, А.С. Матияш, О.В. Трунова, А.В. Анисина, Н.Е. Шабалин, Т.О. Коваленко, Д.С. Прудникова, Н.И. Лаврентьева, Н.А. Каврыжкин, А.Г.Гвоздик, М.Р. Губайдуллина, С.В. Гадалова, Е.В. Басай, Е.М. Попова, А.М. Осипова, Г.Н. Шумская, А.Е. Вагнер
Главный конструктор
М.Я.Резниченко
Конструкторы
А.А. Прокофьев (рук. группы), В.Ю. Антонов, Е.В. Егорова, Е.А. Пантелеева, С.А. Перепелкин, Т.Р. Помазан, Т.С. Компанец, А.Н. Смирнова, Т.Л. Лебедева, В.А. Лядский, Е.Н. Пестова, П.С. Култышев, М.Л. Ингер, О.А. Борисенко, А.С. Денисов, К.В. Иванова, С.А. Двуреченский, Д.А. Астапчик, Л.В. Харламова, А.А. Коблов, В.А. Антонов, С.Н. Козлов
Генплан
Е.Н.Кузнецова, А.С.Титова
Инженерные сети
ОАО «Проектсервис» – СПб ПТИ
Главный инженер проекта
А.А. Акимов
Фото
Юрий Славцов, Андрей Белимов-Гущин
Макет
«ГрадМакет»

Описание

Идея проекта состояла в создании крупного жилого квартала в центре города. Градостроительное решение комплекса связано с Собором Феодоровской иконы Божией Матери, вокруг которого формируется главная площадь.

Читать дальше
Пресса о проекте
Столичная последовательность
Жилой комплекс «Царская столица» – один из крупнейших проектов по освоению промышленных территорий в центре Петербурга. Бюро «Евгений Герасимов и партнеры» удалось не только превратить заброшенный участок в полный жизни микрорайон, но и создать градостроительно выверенную единицу.
Читать далее