Концепция расширения Литературно-мемориального музея Ф.М. Достоевского
Заказчики
Фонд поддержки и развития Музея Ф.М. Достоевского «Петербург Достоевского»
Адрес
Санкт-Петербург, Кузнечный переулок, 5
Проектирование
2016-2018
Площадь участка
496 кв. м
Площадь застройки
496 кв. м
Общая площадь
1600 кв. м
Этажность
4-5
Руководитель коллектива
Евгений Львович Герасимов
ГАП
О.Л. Минниева, А.А. Штепа
Архитекторы
А.А. Кузнецов, А.А. Кутилина, Е.И. Янанец
Инженерные сети
ООО «ТСН»
Макет
ГрадМакет
Описание
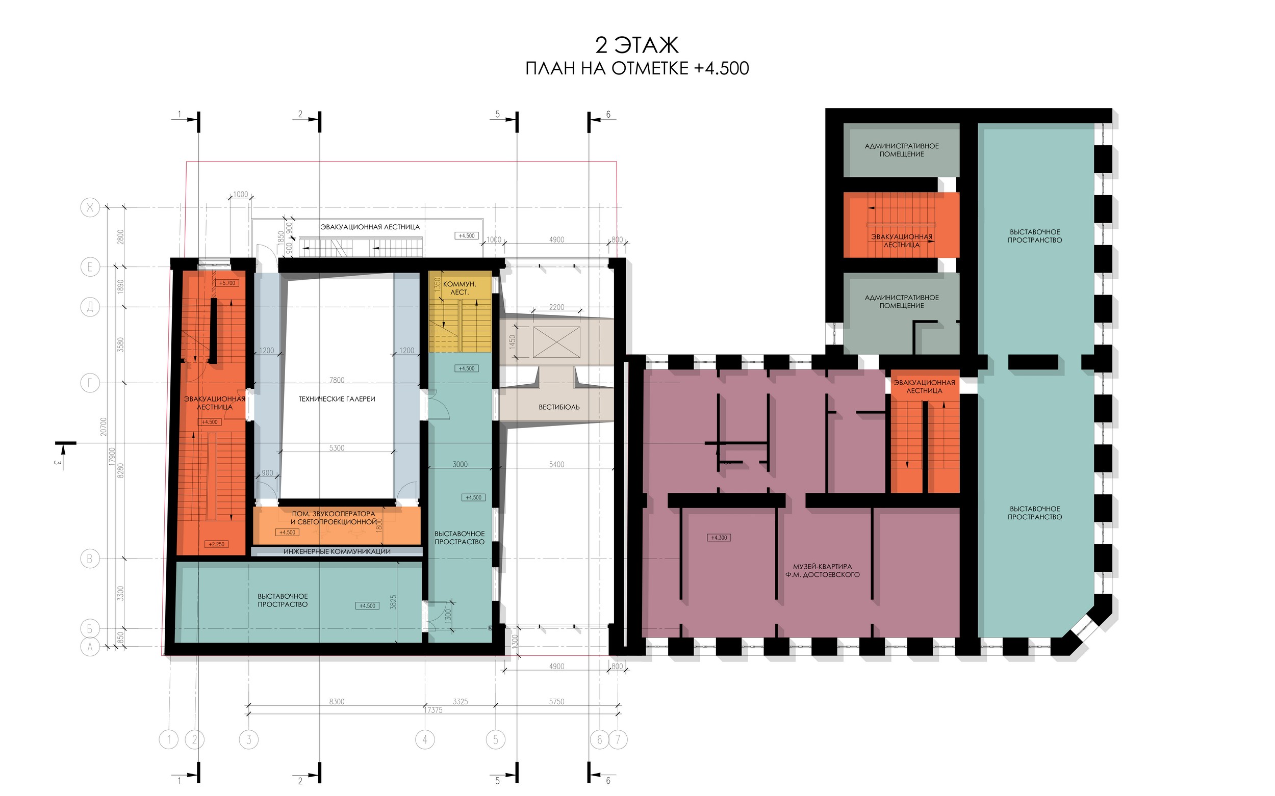
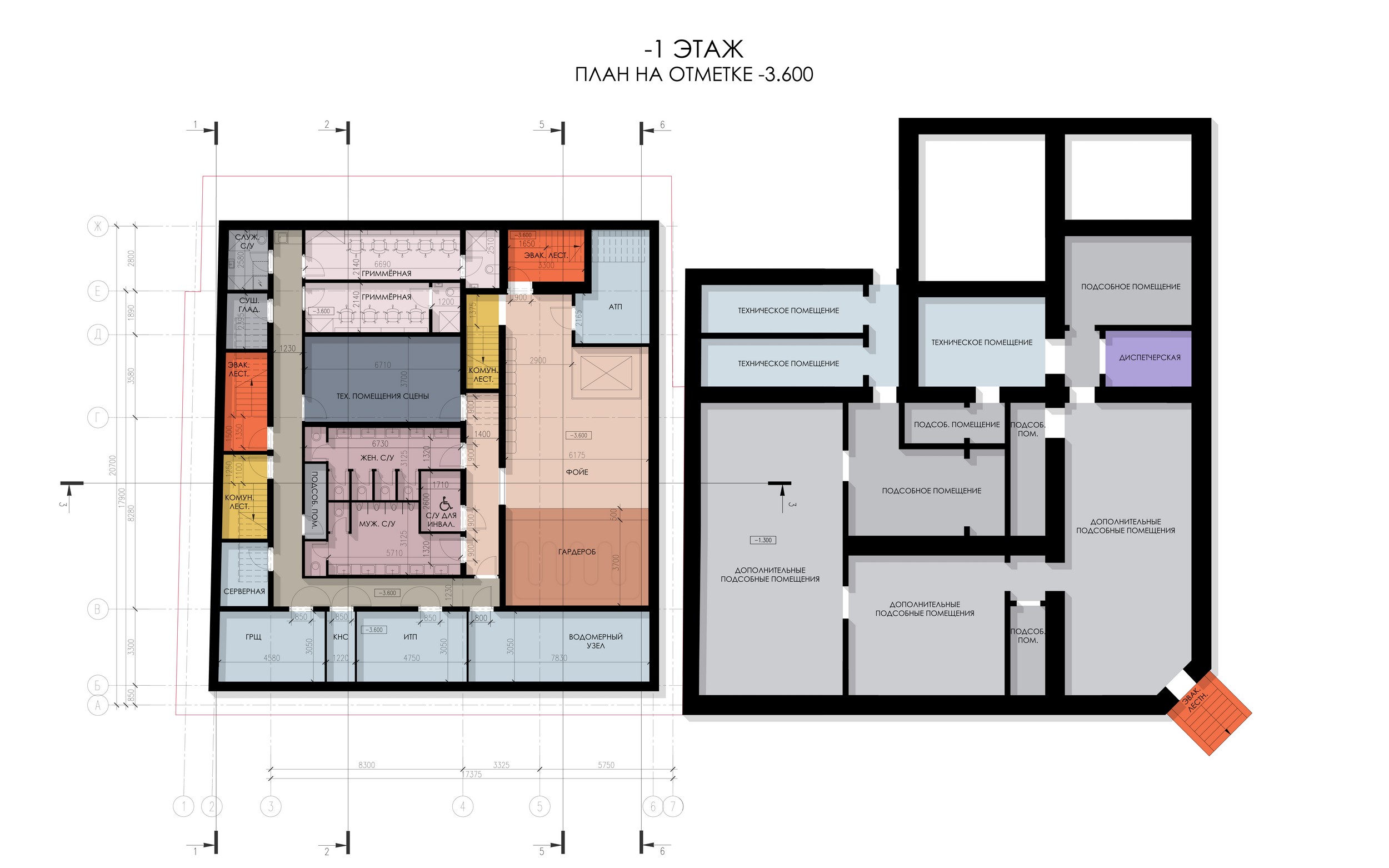
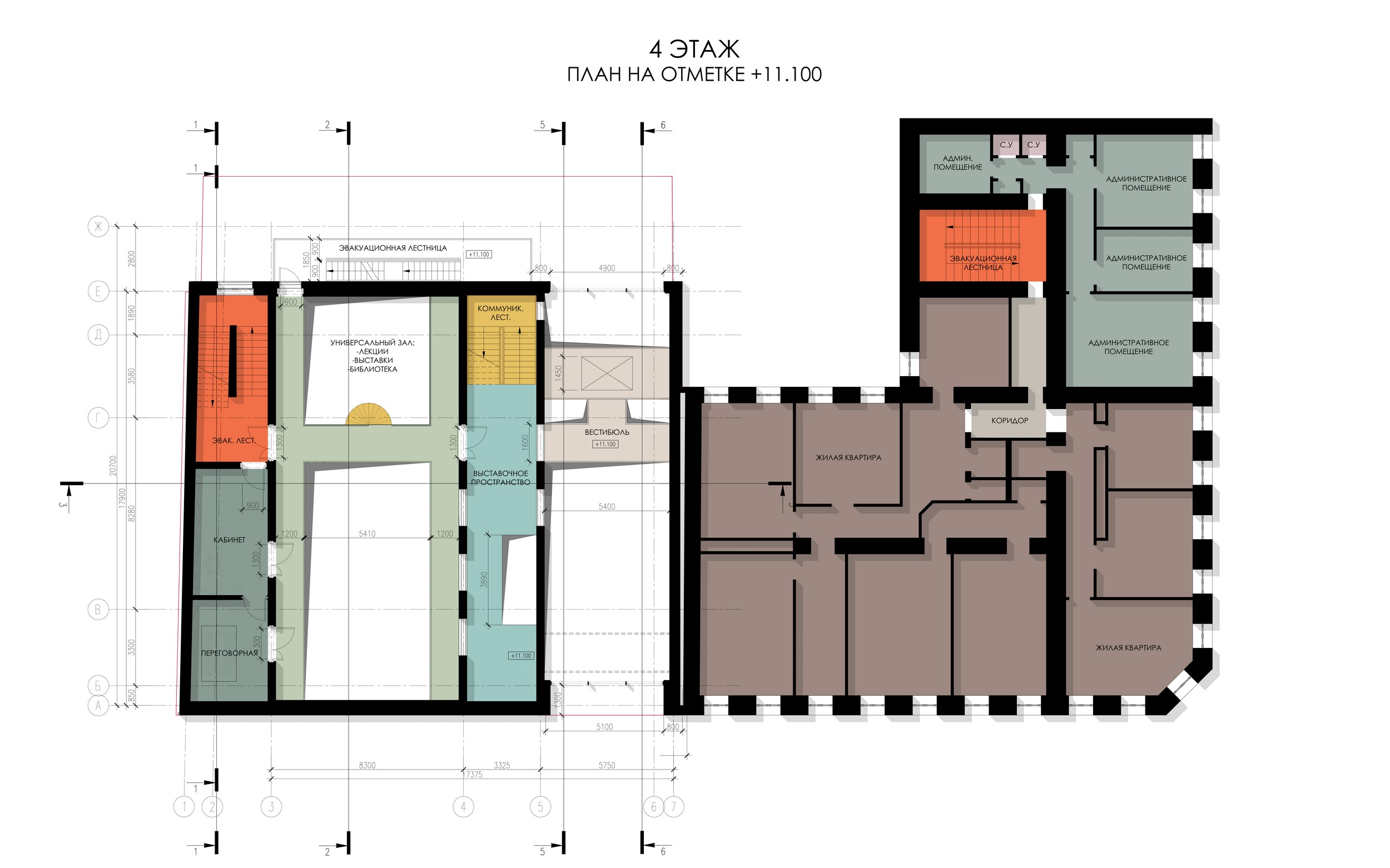
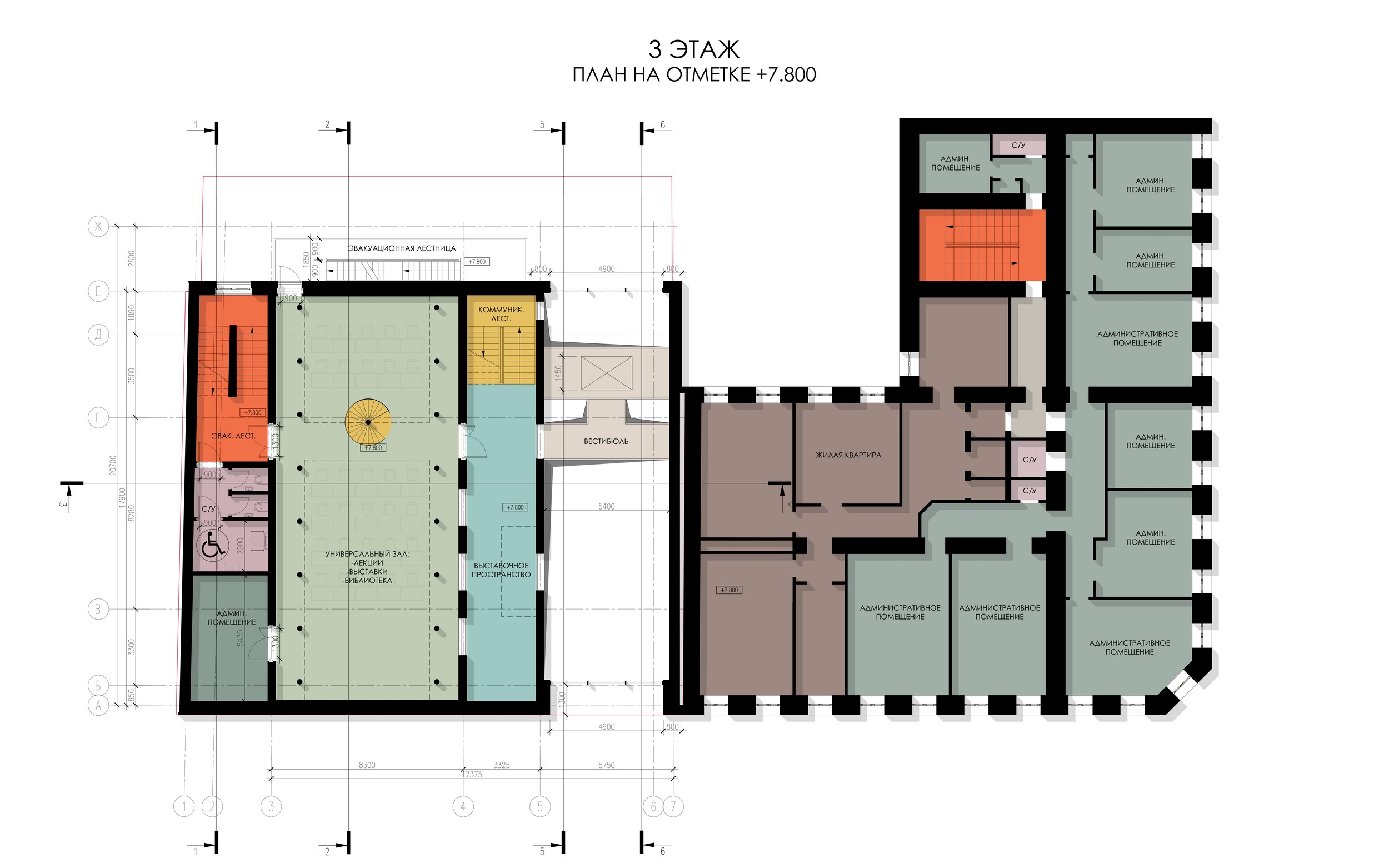
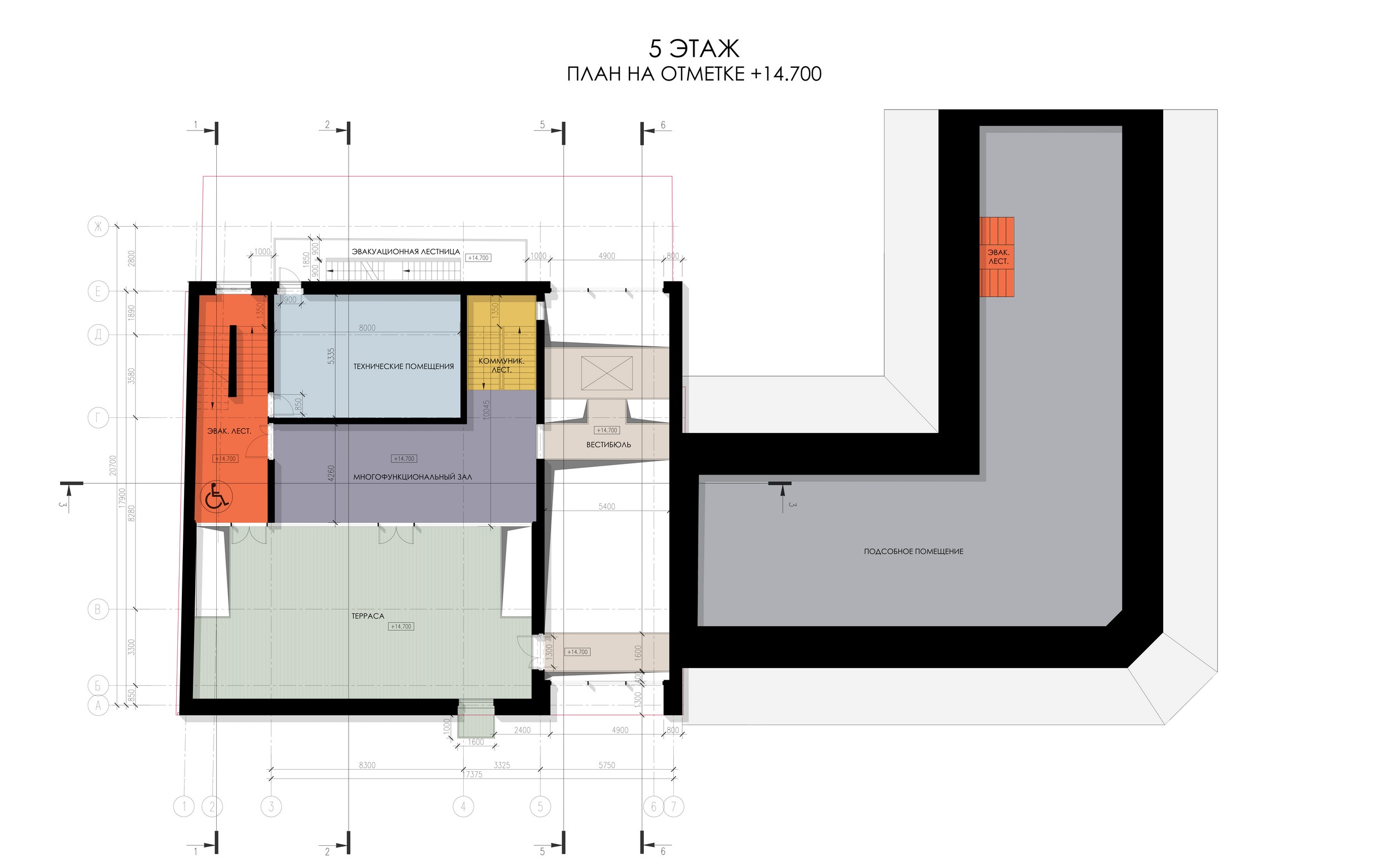
Здание нового общественно-культурного центра должно создать условия для более комфортного, соответствующего современным требованиям функционирования музея. В нём разместятся многофункциональные лекционный и зрительный залы, выставочное пространство, кафе и музейный магазин.
Читать дальшеПресса о проекте
Почему музею Достоевского необходимо новое отдельное здание. Интервью Натальи Ашимбаевой
Читать vk
Е.Л. Герасимов в прямом эфире у Ники Стрижак
По ссылке — запись итоговой пятничной программы «Открытая студия. Неделя» от 21 февраля. Главные городские новости комментируют руководитель архитектурной мастерской Евгений Герасимов и декан юридического факультета Северо-Западного института управления РАНХиГС Сергей Цыпляев. Сюжет о проекте расширения Музея Достоевского начинается на отметке 1:20:00.
Смотреть на канале 78
ПМЭФ-2018: Музей Достоевского получит новое здание
25 мая 2018 года в рамках Петербургского международного экономического форума между Санкт-Петербургом и Фондом «Петербург Достоевского» было подписано соглашение о намерениях.
Читать далее
Е.Л. Герасимов в эфире канала «Город +»
Евгений Герасимов побывал в эфире канала «Город +». Архитектор рассказал о проекте нового здания Музея Достоевского, о перспективах реновации серого пояса и о том, чем скомпрометировал себя конструктивизм.
Читать далее
Новый корпус или сквер: Что будет с Музеем Достоевского
Идея построить в Кузнечном переулке новое здание появилась три года назад, когда Евгений Герасимов сотрудничал с музеем в рамках издания иллюстраций для романов «Идиот» и «Преступление и наказание». Тогда, увидев, что гардероб музея находится в подвале, а туалет — на другом этаже, архитектор понял, что зданию необходимо расширение. Проект поддержала директор музея Наталья Ашимбаева.
Читать на The-Village.ru
Скорее метафорически, чем буквально
В Петербурге спорят: можно ли строить новое крыло музея Достоевского современной архитектуры, или все, что дозволено – восстановить утраченный по соседству доходный дом? Рассматриваем предварительную концепцию здания музея.
Читать на archi.ru
Смольный поддержал инициативу Фонда «Петербург Достоевского» по созданию нового музейного пространства
В начале апреля инициатива некоммерческого фонда «Петербург Достоевского» по созданию нового музейного пространства Достоевского была одобрена Смольным. Начало строительства ожидается в первом квартале 2019 года.
Читать далее
Награды проекта
Золотой знак международного фестиваля «Зодчество». Архитектурные произведения 2017-2019 гг. Проекты. Номинация - «Объект социального и культурного назначения».
Диплом международного фестиваля «Зодчество». Короткометражный фильм «Концепция расширения Музея Достоевского».
Золотой диплом Доменико Трезини. Номинация «За лучший российский архитектурный проект музея».
Следующий проект