Многофункциональный центр в Нижнем Новгороде
Адрес
Нижний Новгород, ул. Гаршина, 40
Проектирование
2019-2020
Руководитель коллектива
Е.Л. Герасимов
ГАП
В.Ф. Хиврич
Архитекторы
И.М. Минниев (рук. группы), И.В. Припоров, И.В. Хухка, М.М. Гимназдинов, О.С. Леушина, А.В. Половинкина, В.А. Махмудов
Описание
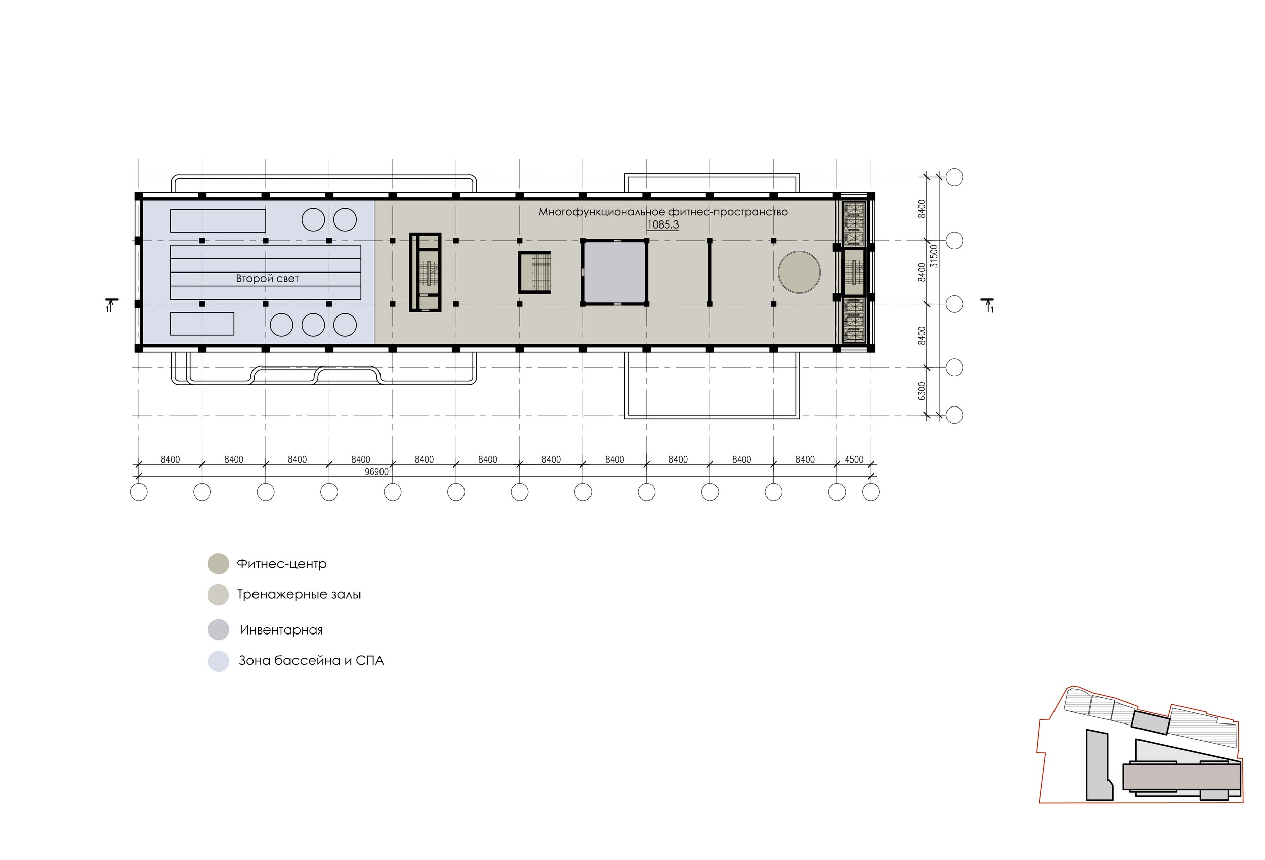
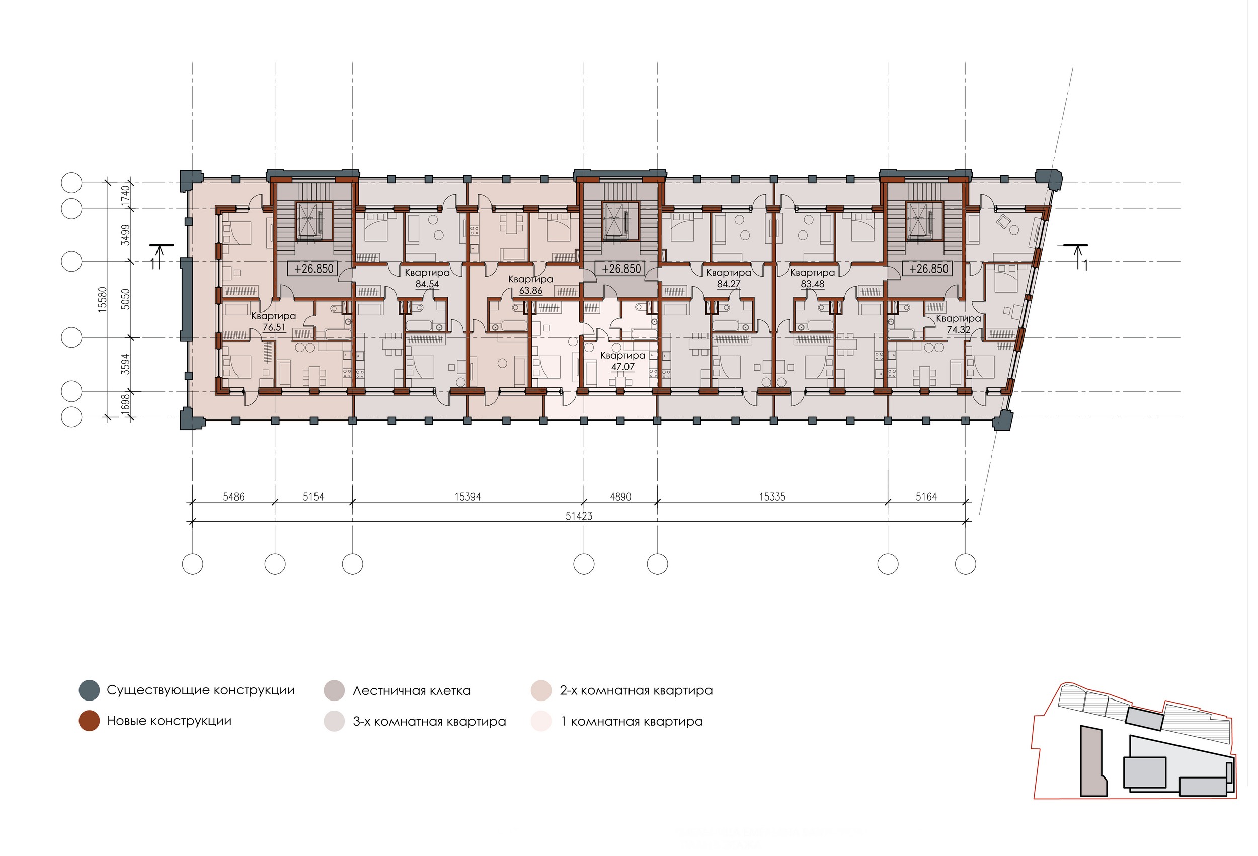
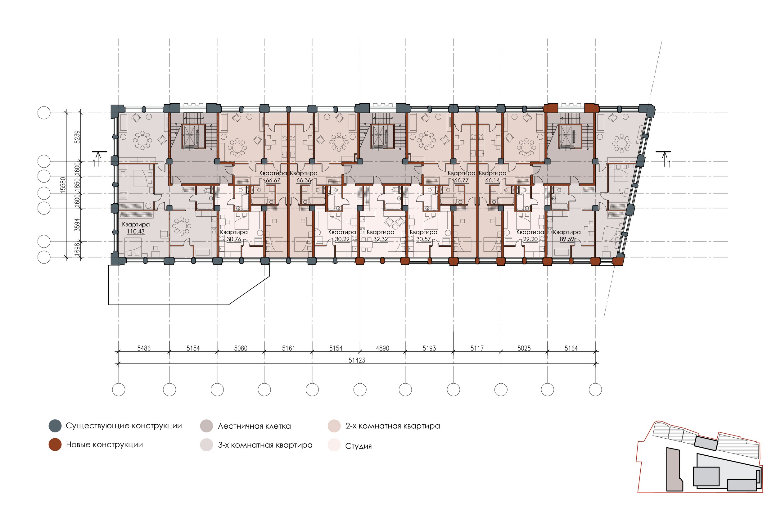
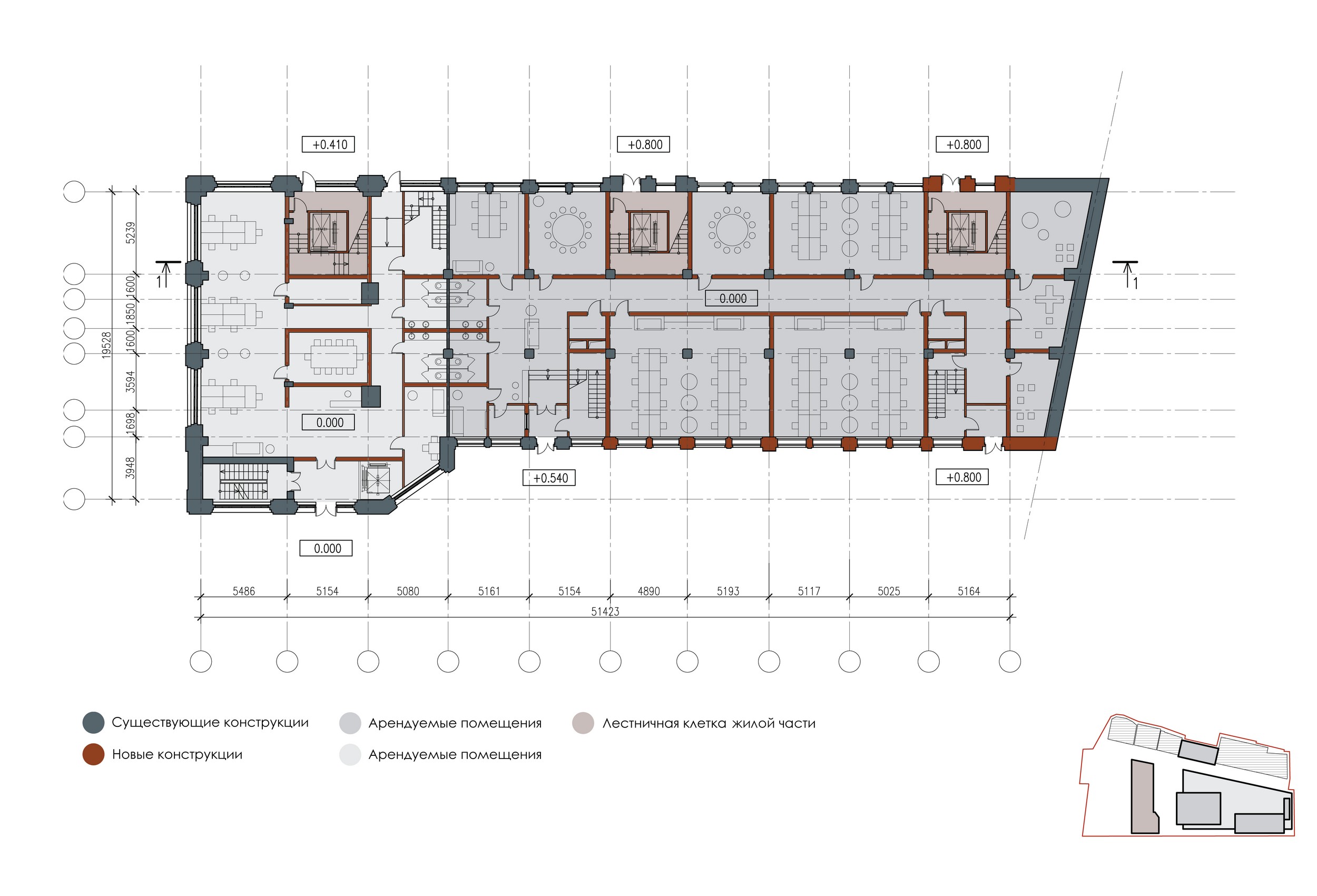
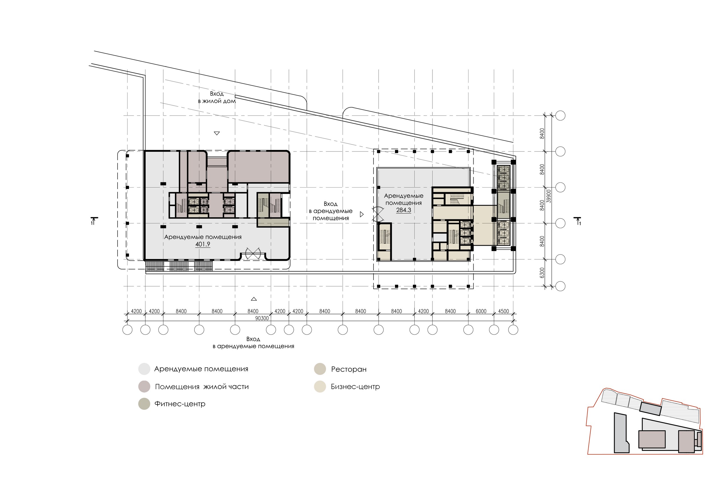
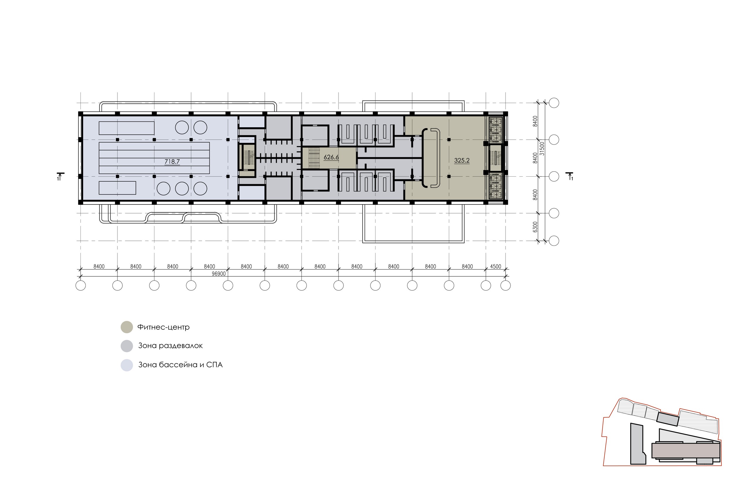
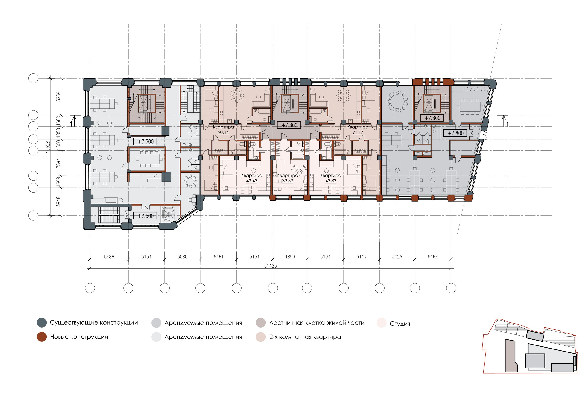
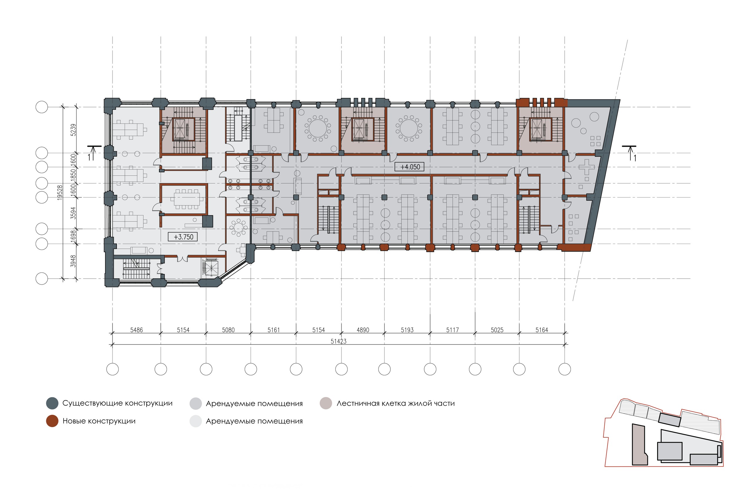
Многофункциональный центр запланирован в исторической части Нижнего Новгорода, в живописной излучине реки Оки, на месте элеватора бывшего мукомольного завода с почти полуторавековой историей. Все сохраненные исторические корпуса составят часть нового комплекса с высотной доминантой на месте элеваторных башен.
Читать дальшеСледующий проект