Офисный центр отеля «Невский палас». Реконструкция

Заказчики
ООО «Гермес»
Адрес
Санкт-Петербург, Стремянная ул., д. 10
Проектирование
1999
Строительство
2000
Площадь участка
934,4 кв. м
Площадь застройки
934,4 кв. м
Общая площадь
2 445,36 кв. м
Этажность
3 + мансарда
Партнеры
«РестАрт»
Руководитель коллектива
Герасимов Е.Л.
ГАП
Меркушева С.Д.
Архитекторы
Смирнов К.В., Бурдонская С.И.
Главный конструктор
Резниченко М.Я., Замура В.В.
Конструкторы
Илиодорова М.П., Антонов В.Ю.; ООО «ТОР» Замура В.В.
Инженерные сети
Архитектурно-проектная мастерская Ухова В.О.
Фото
Смирнов К.В. 
Макет
«ГрадМакет»

Описание

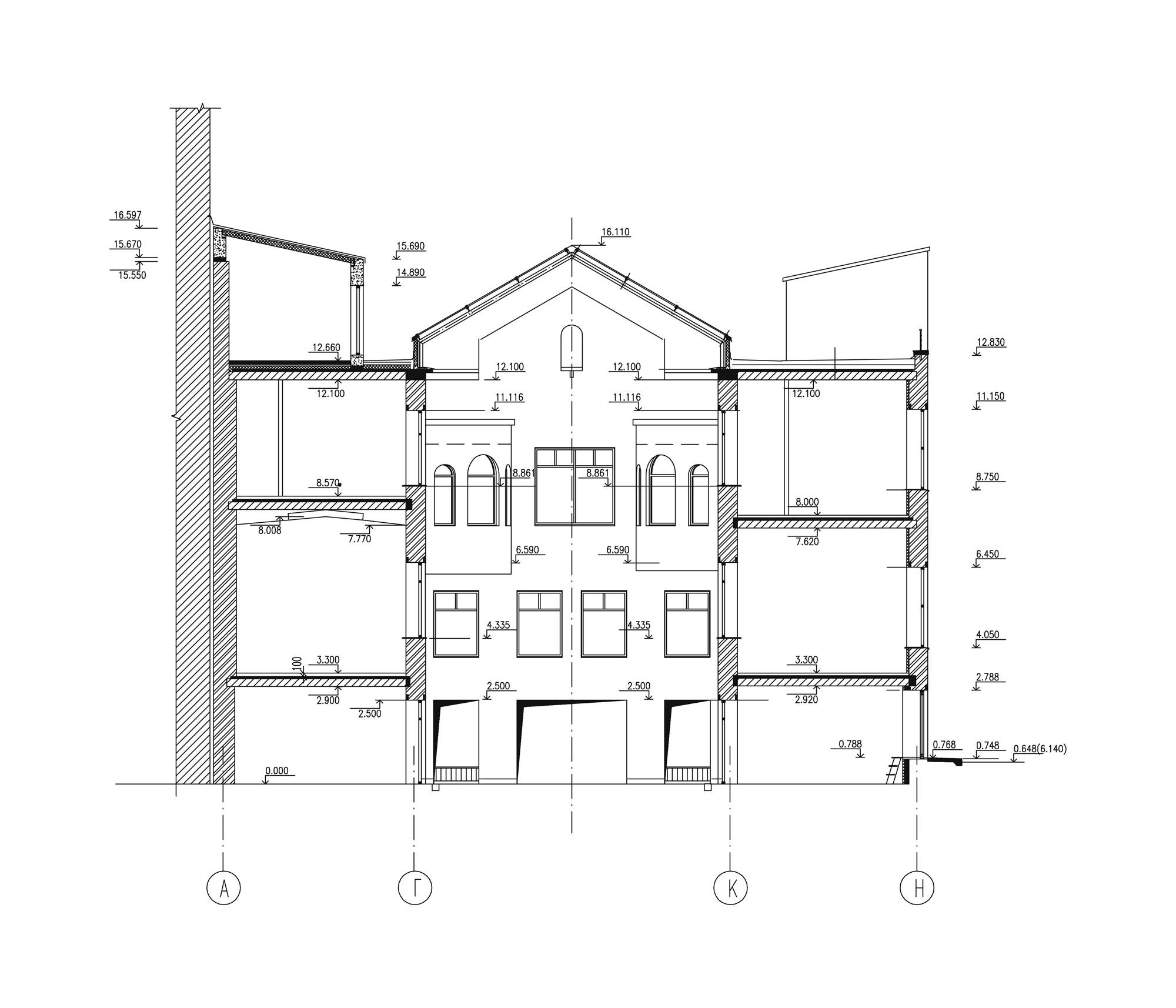
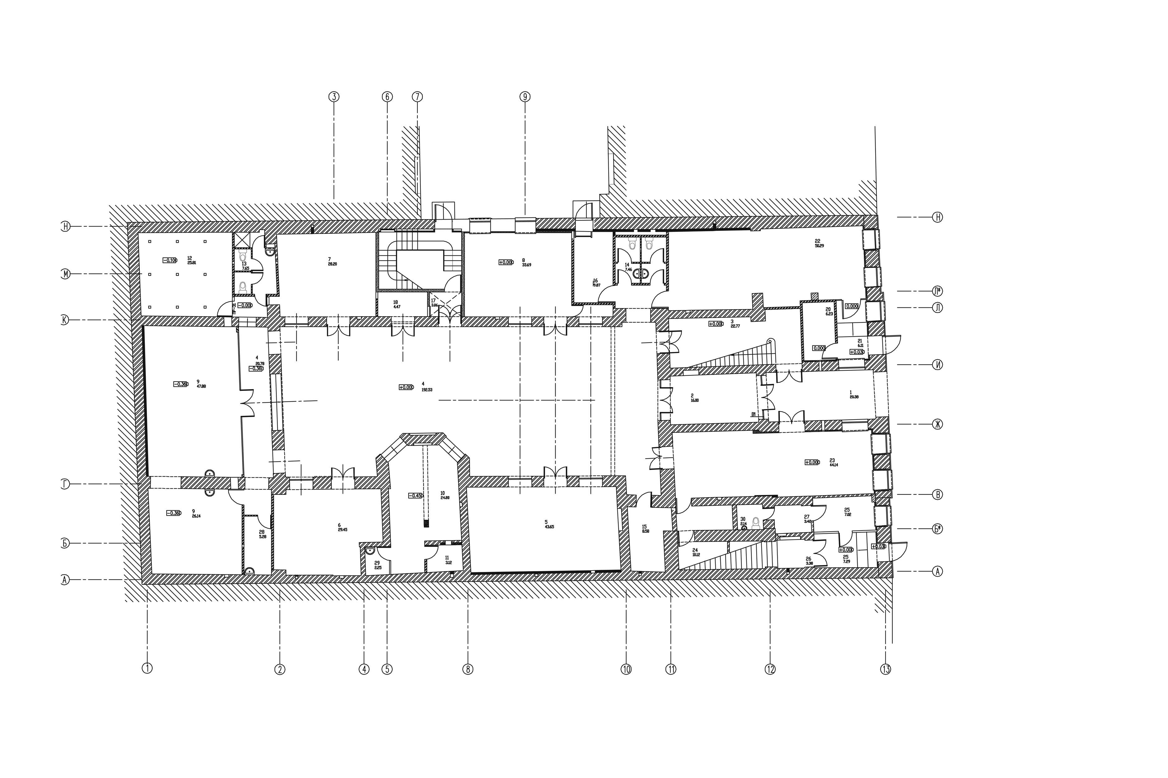
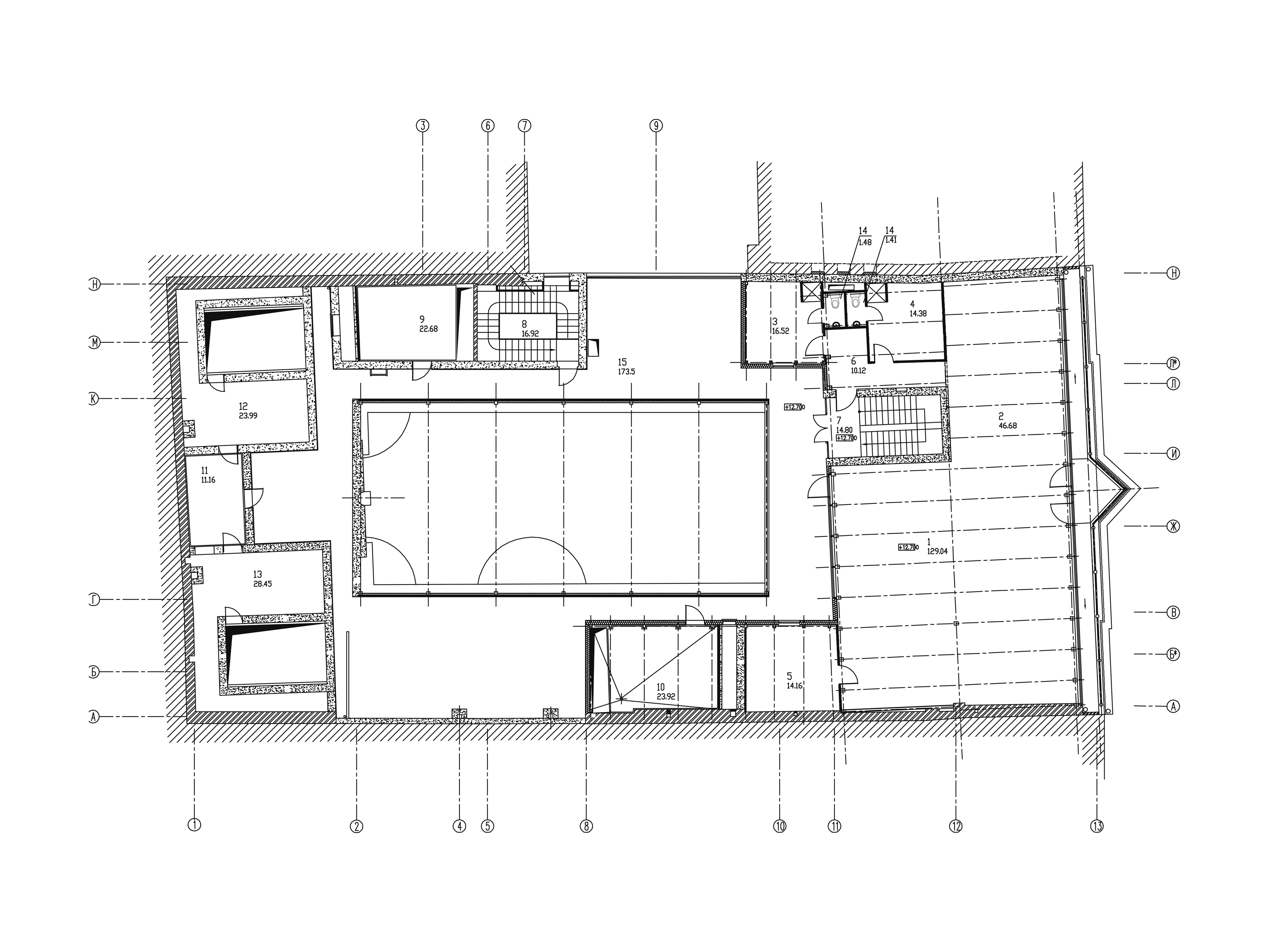
Для реконструкции бывшего дома купца Худякова под офисный центр было выбрано решение, сочетающее элементы традиционного и современного архитектурного языка. Дворовое пространство перекрыто светопрозрачными конструкциями, в нем устроен атриум. Лицевой фасад надстроен стеклянной мансардой с галереей-террасой вдоль Стремянной улицы, а ярким акцентом фасада является треугольный остеклённый эркер.

Читать дальше
Следующий проект