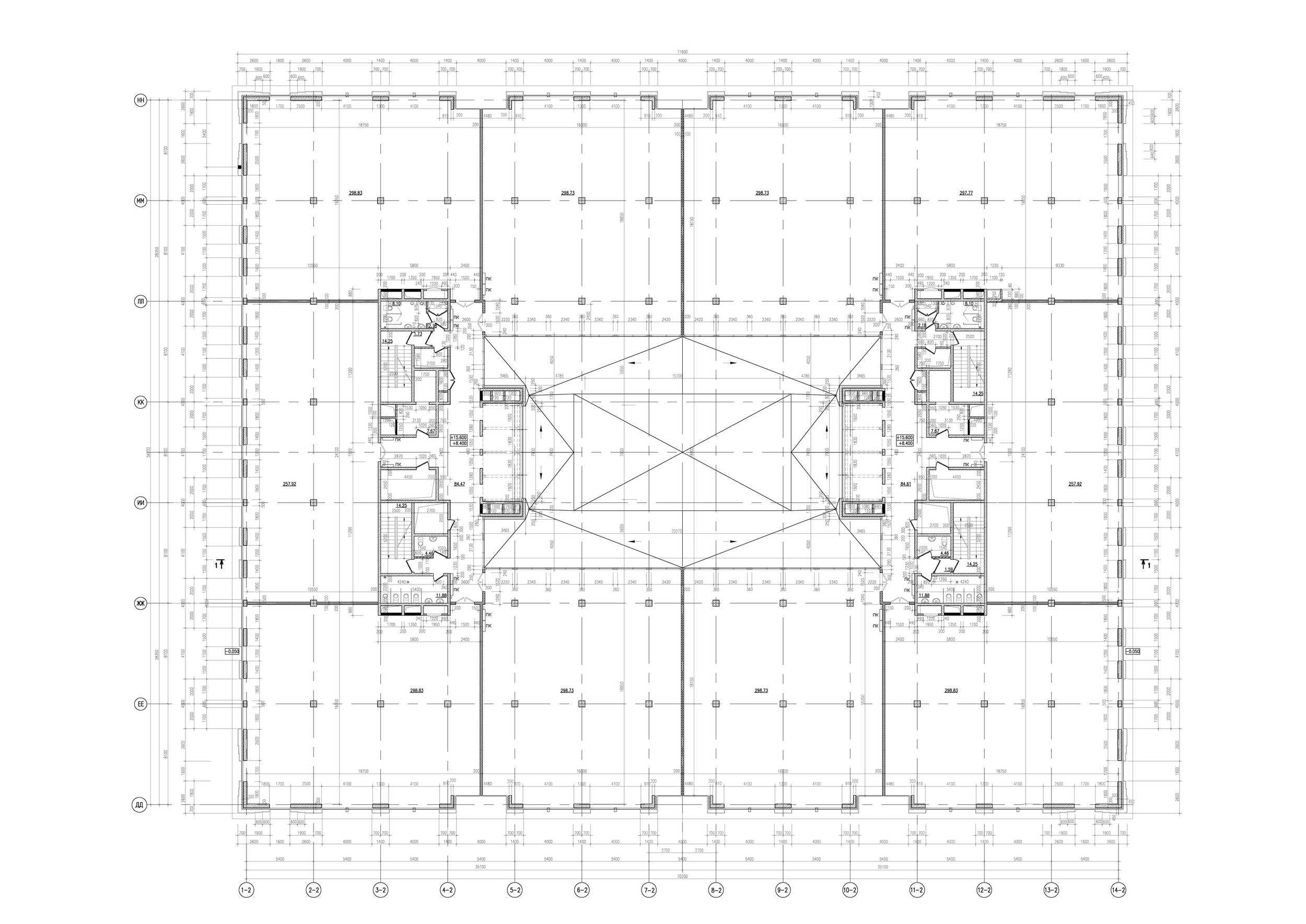
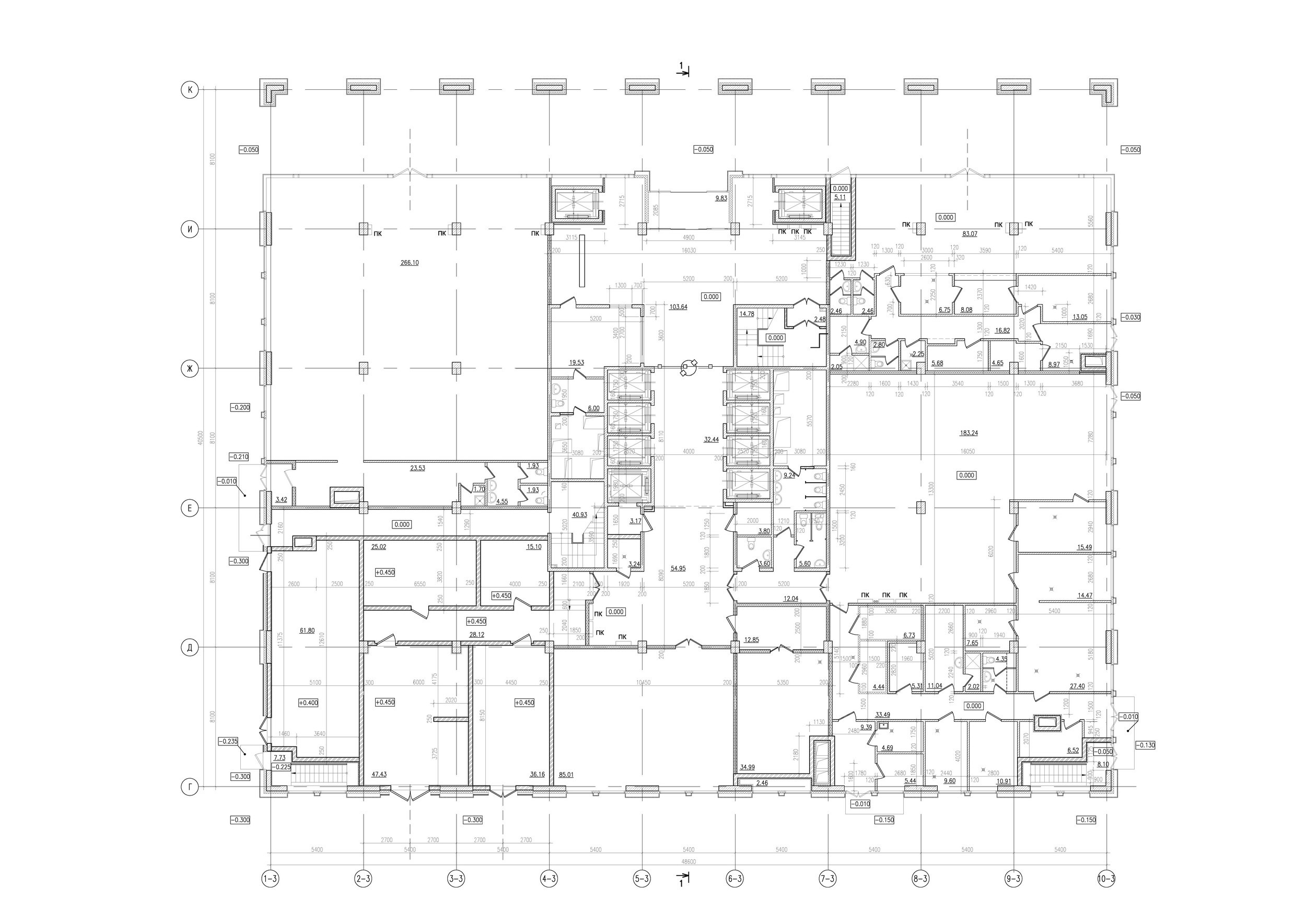
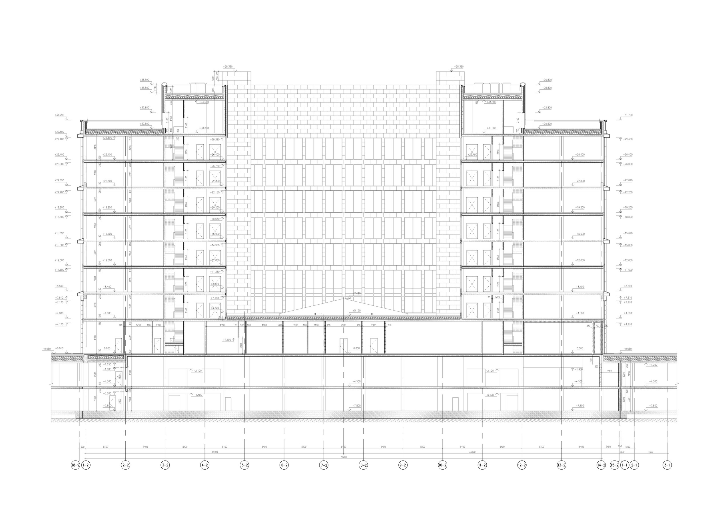
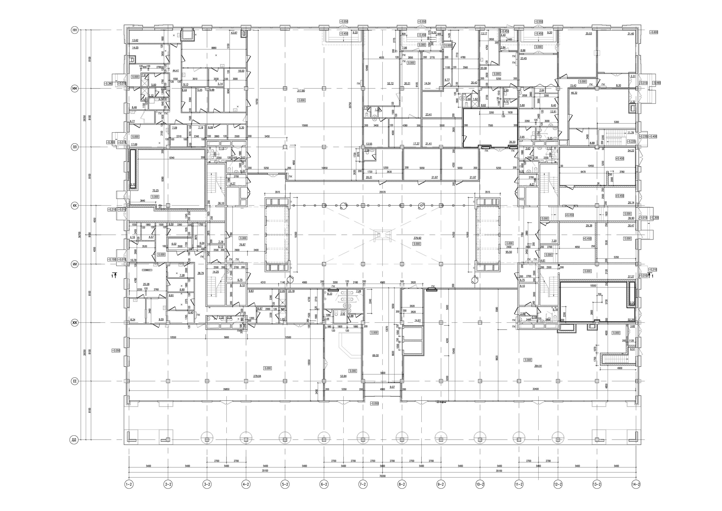
Административный и общественно-деловой комплекс «Невская ратуша»
Заказчики
ЗАО «М», Администрация г. Санкт-Петербурга
Адрес
Санкт-Петербург, Новгородская ул., 20а
Проектирование
2007-2010
Строительство
2011-2016
Площадь застройки
27 194,2 кв. м
Общая площадь
187 649,6 кв. м
Количество корпусов
3
Партнеры
SPEECH, nps tchoban voss
Руководитель коллектива
Евгений Львович Герасимов, Сергей Энверович Чобан
ГАП
З.В. Петрова, Т.А. Комалдинова
Архитекторы
Е.А. Резникова, И.Г. Бахорина, Н.П. Безбородова, А.Г. Гвоздик, Т.В. Кузнецова, О.В. Манов, М.Е. Орлова-Шейнер, О.В. Трунова, Д.С. Прудникова, Я.Е. Серебрякова (ООО «Евгений Герасимов и партнеры»)
В. Каширина, Ф. Шольц, П. Земсков (nps tchoban voss)
В. Казуль, А. Перлич, С. Арутюнов, О. Берлянд, А.Боранбаева, М. Гришанов, Т. Жукова, А. Кабанов, А. Козырева, М. Кузнецкая, М. Кутовски, Ю. Лаврова, А. Лисицын, Т. Локтева, Т. Любимова, О. Никитина, А. Плотникова, Л. Панасенко, Е. Плужник, М. Рассказова, Е. Сенникова, К. Скуднова, А. Тычинина, А. Хмеленина, Я. Шестихина, С. Шилова (SPEECH)
В. Каширина, Ф. Шольц, П. Земсков (nps tchoban voss)
В. Казуль, А. Перлич, С. Арутюнов, О. Берлянд, А.Боранбаева, М. Гришанов, Т. Жукова, А. Кабанов, А. Козырева, М. Кузнецкая, М. Кутовски, Ю. Лаврова, А. Лисицын, Т. Локтева, Т. Любимова, О. Никитина, А. Плотникова, Л. Панасенко, Е. Плужник, М. Рассказова, Е. Сенникова, К. Скуднова, А. Тычинина, А. Хмеленина, Я. Шестихина, С. Шилова (SPEECH)
Главный конструктор
М.Я. Резниченко
Конструкторы
С.В. Рыжова, А.А. Прокофьев, Н.В. Алексеева (руководители групп конструкторов)
Д.А. Астапчик, Д.О. Григорьев, Е.А. Пантелеева, Е.Н. Пестова, Т.Р. Помазан, Т.Е. Смирнова, Н.В. Богданова, К.В. Иванова, А.Н. Рыбаков, Е.С. Яковлева, П.С. Култышев, И.Е. Андреев, Т.Р. Горшкалева, В.Ю. Антонов, С.В. Кучин
Д.А. Астапчик, Д.О. Григорьев, Е.А. Пантелеева, Е.Н. Пестова, Т.Р. Помазан, Т.Е. Смирнова, Н.В. Богданова, К.В. Иванова, А.Н. Рыбаков, Е.С. Яковлева, П.С. Култышев, И.Е. Андреев, Т.Р. Горшкалева, В.Ю. Антонов, С.В. Кучин
Генплан
Е.Н. Кузнецова, А.С. Титова
Инженерные сети
ООО «ЭДВАНС-И»
Главный инженер проекта
Н.В. Гражданова
Фото
Юрий Славцов, Андрей Белимов-Гущин
Макет
«ГрадМакет»
Описание
Квартал объединяет здания органов исполнительной власти, бизнес-центры, гостиницы, а также открытые общественные пространства. В 2016 году закончено строительство первой очереди комплекса: зданий Ратуши и двух бизнес-центров.
Читать дальшеПресса о проекте
Всё танцует и светится: как преобразились общественные пространства «Невской Ратуши»
Вращающиеся скамейки и современное озеленение — территория «Невской Ратуши» преобразилась благодаря проведенным работам по благоустройству. Они приурочены к сдаче корпусов второй очереди. Теперь деловой кластер стал еще более современным и самодостаточным общественным пространством.
Читать Фонтанка.ru
Новая элитная локация формируется вокруг "Невской ратуши"
Продолжающееся строительство делового квартала "Невская ратуша" увеличивает интерес к локации со стороны застройщиков и позволяет реализовывать здесь новые элитные проекты, рассчитанные в том числе на его резидентов.
Читать Деловой Петербург
Три новых корпуса «Невской Ратуши» до конца лета будут переданы заказчику с отделкой «под ключ»
Однажды архитектор Евгений Герасимов сравнил «Невскую Ратушу» с моделью нашего общества: в едином пространстве работают власть и бизнес
Читать на "Фонтанке"
«Невская ратуша» в «Архиблоге»
Главный редактор журнала SPEECH Анна Мартовицкая запустила youtube-канал «Архиблог», где профессионально, но не скучно рассказывает о новой архитектуре. Новый выпуск видеоблога снят в Санкт-Петербурге и посвящен Невской Ратуше — административному и деловому комплексу, построенному по проекту Евгения Герасимова и Сергея Чобана.
Смотреть на youtube
Я работаю в «Невской ратуше»
На сайте The-Village.ru вышла большая статья, посвященная административному и общественно-деловому комплексу «Невская ратуша» и в особенности тому, как в нем работается.
Читать на The-Village.ru
Tatlin Plan #29. Деловой квартал «Невская ратуша»
Новый выпуск Tatlin plan подробно рассказывает историю одного из наиболее масштабных проектов, реализованного за последние годы в центральной части Петербурга.
Открыть журнал
«Прозрачность империи»
В Петербурге завершилось строительство первой очереди административно-делового квартала «Невская ратуша» Евгения Герасимова и Сергея Чобана. Рассказываем и показываем, что получилось из синтеза классики и прозрачности.
Читать на archi.ru
Награды проекта
Диплом международного фестиваля «Зодчество». Архитектурные произведения 2014-2016 г. Постройки. Многофункциональные градостроительные ансамбли и комплексы.
Следующий проект