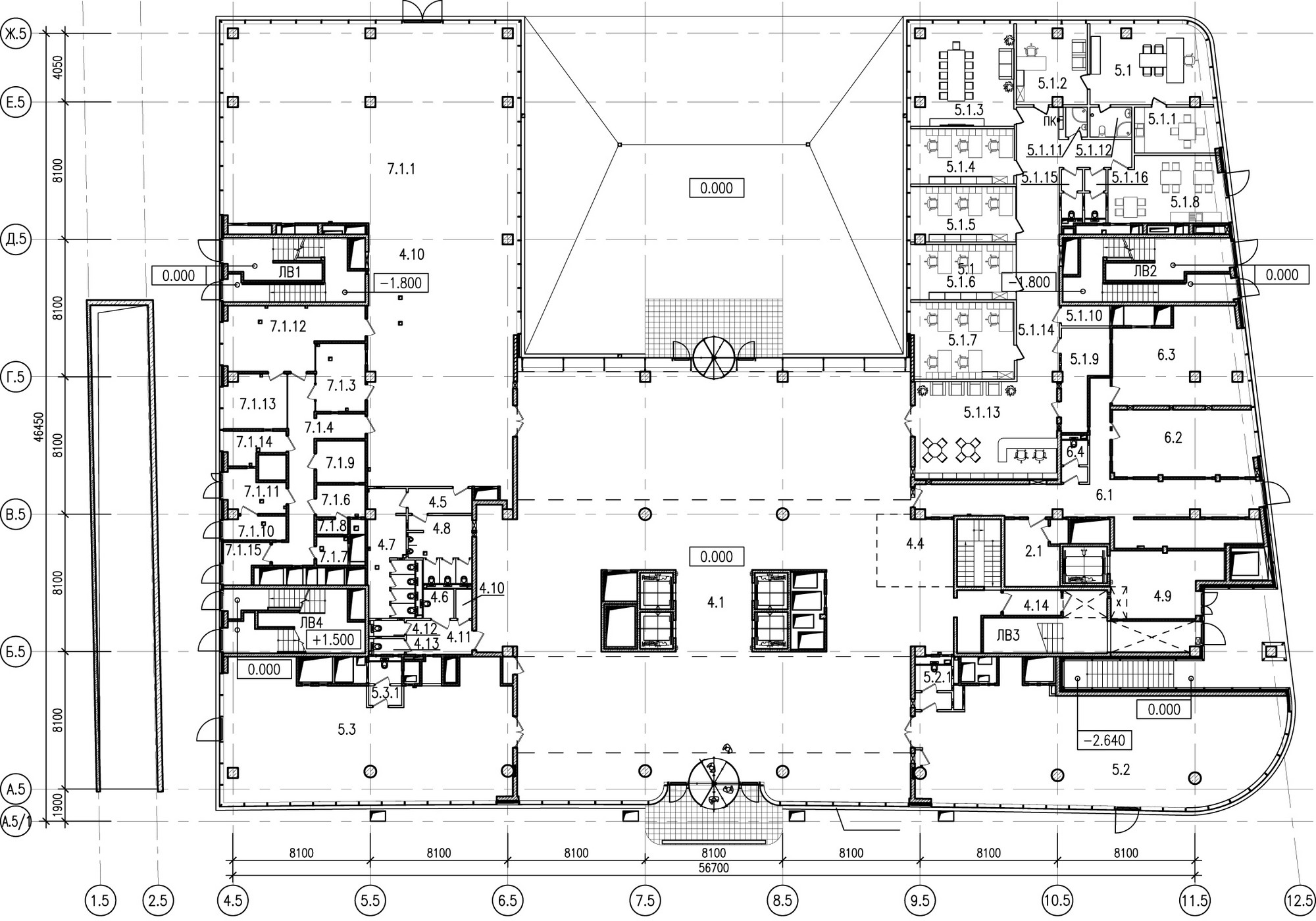
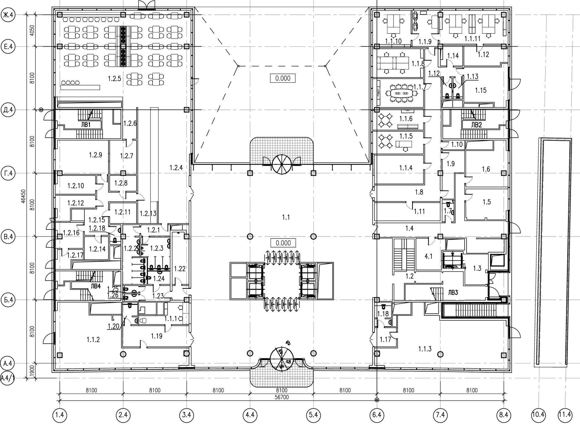
Конгрессно-выставочный комплекс «Экспофорум»
Заказчики
ЗАО «Экспофорум»
Адрес
Санкт-Петербург, Петербургское шоссе, 62– 66
Проектирование
2009-2012
Строительство
2011-2014
Площадь застройки
87 295 кв. м
Общая площадь
187 674 кв. м
Этажность
1-8 этажей
Гостиницы
31 311 кв. м
Бизнес-центры
30 124 кв. м
Конгресс-центры
28 063 кв. м
Выставочные павильоны
52 437 кв. м
Партнеры
SPEECH, nps tchoban voss
Руководитель коллектива
Евгений Львович Герасимов, Сергей Энверович Чобан
ГАП
В.Ф. Хиврич, А.М. Перлич, В. Каширина, И. Марков
Архитекторы
И.М. Минниев, А.С. Букина, Н.Н. Дмитриева, М.А. Раменская, Е.С. Савченко, И.В. Филимонова, Д.А. Зайцев, М.П. Борисюк, Г.Н. Шумская, Е.М. Осипова, Е.П. Апполонова, Е.Н. Будылина (ООО «Евгений Герасимов и партнеры»)
А.Перлич, Т. Локтева, Е. Машков, И. Апарин, А. Попова, Д. Толстова, Т. Любимова, А. Туманян, Е. Плужник, С. Орехова, И. Филатов, А. Корникова, А. Хмеленина, Г. Шашкина, М. Рассказова, Ю. Лаврова (SPEECH)
К. Озан, Д. Дитц, Х. Тёппер, Р. Шварцвеллер,
И. Шварцвеллер, С. Гришкат, Р. Хох (nps tchoban voss)
А.Перлич, Т. Локтева, Е. Машков, И. Апарин, А. Попова, Д. Толстова, Т. Любимова, А. Туманян, Е. Плужник, С. Орехова, И. Филатов, А. Корникова, А. Хмеленина, Г. Шашкина, М. Рассказова, Ю. Лаврова (SPEECH)
К. Озан, Д. Дитц, Х. Тёппер, Р. Шварцвеллер,
И. Шварцвеллер, С. Гришкат, Р. Хох (nps tchoban voss)
Главный конструктор
Маргарита Яковлевна Резниченко
Конструкторы
Н.В. Алексеева, Д.А. Астапчик, Т.В. Белова, Д.О. Григорьев, Е.В. Егорова, М.Л. Ингер, Т.Л. Лебедева, Е.М. Никитина, А.А. Коблов, Т.С. Компанец, С.А. Перепелкин, Е.А. Пантелеева,
Е.С. Яковлева, В.Ю. Антонов, С.В. Кучин, В.Е. Павленко, А.Т. Шарыгин (ООО «Евгений Герасимов и партнеры»)
М.А. Трофимов, В.Г. Розенфельд (ООО ПКП «ФЕРУМПРОМ»)
И. Томович, Ф. Фонтейн, С. Алёшивеч, С. Юппен, Р. Бехманн
(ООО «Вернер Зобек Москва»)
Е.С. Яковлева, В.Ю. Антонов, С.В. Кучин, В.Е. Павленко, А.Т. Шарыгин (ООО «Евгений Герасимов и партнеры»)
М.А. Трофимов, В.Г. Розенфельд (ООО ПКП «ФЕРУМПРОМ»)
И. Томович, Ф. Фонтейн, С. Алёшивеч, С. Юппен, Р. Бехманн
(ООО «Вернер Зобек Москва»)
Генплан
Е.Н. Кузнецова, А.С. Титова
Инженерные сети
ОАО «Проектсервис» – СПб ПТИ
Главный инженер проекта
А.В. Таборский, А.В. Крынин, Н.Ю. Нечаева
Фото
Дмитрий Чебаненко
Макет
«ГрадМакет»
Описание
«Экспофорум» выполнен в яркой модернистской стилистике. Отличительной особенностью стал янтарный цвет фасадов, сохранённый независимо от применённых отделочных материалов.
Читать дальшеПресса о проекте
Чего петербуржцы не знают об «Экспофоруме»
«Экспофорум» – это не только деловые мероприятия, но и события, которые можно посещать всей семьей: спортивные соревнования, мюзиклы, концерты, фестивали и ярмарки.
Читать на сайте Fontanka.ru
Янтарная стрела
Санкт-Петербургский Экспофорум – конгрессно-выставочный центр, которого долго ждали и о котором много спорили, наконец построен, введен в эксплуатацию и уже активно функционирует.
Читать на archi.ru
Награды проекта
Диплом проекта «Качественная архитектура» 2018. За творческий вклад в создание качественной российской архитектуры.
Следующий проект