Verona Residential Building
Project Owners
Revival of St Petersburg Building Corporation
Address
29a Morskoy Prospekt, St Petersburg
Designed
2011-2014
Constructed
2016-2018
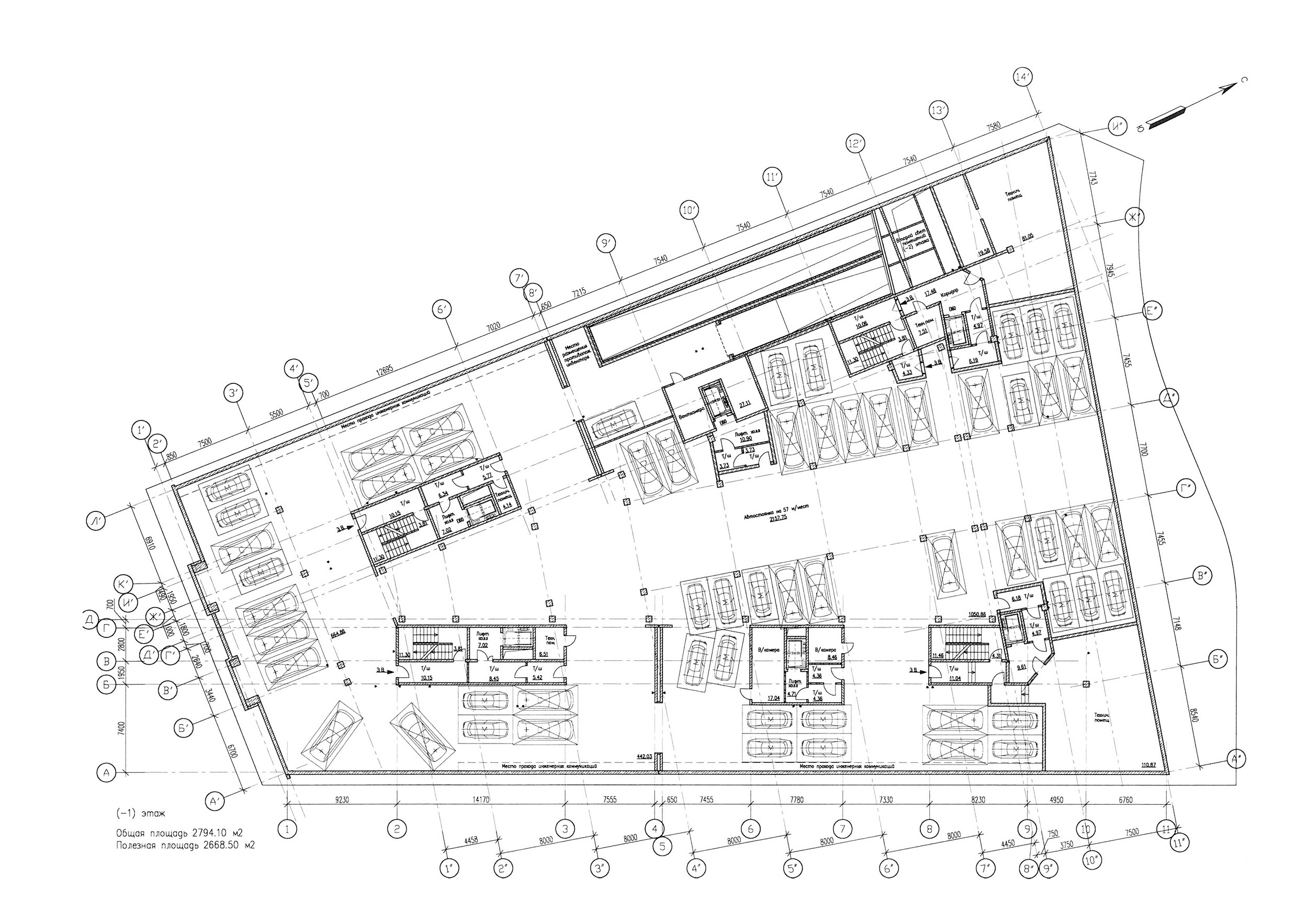
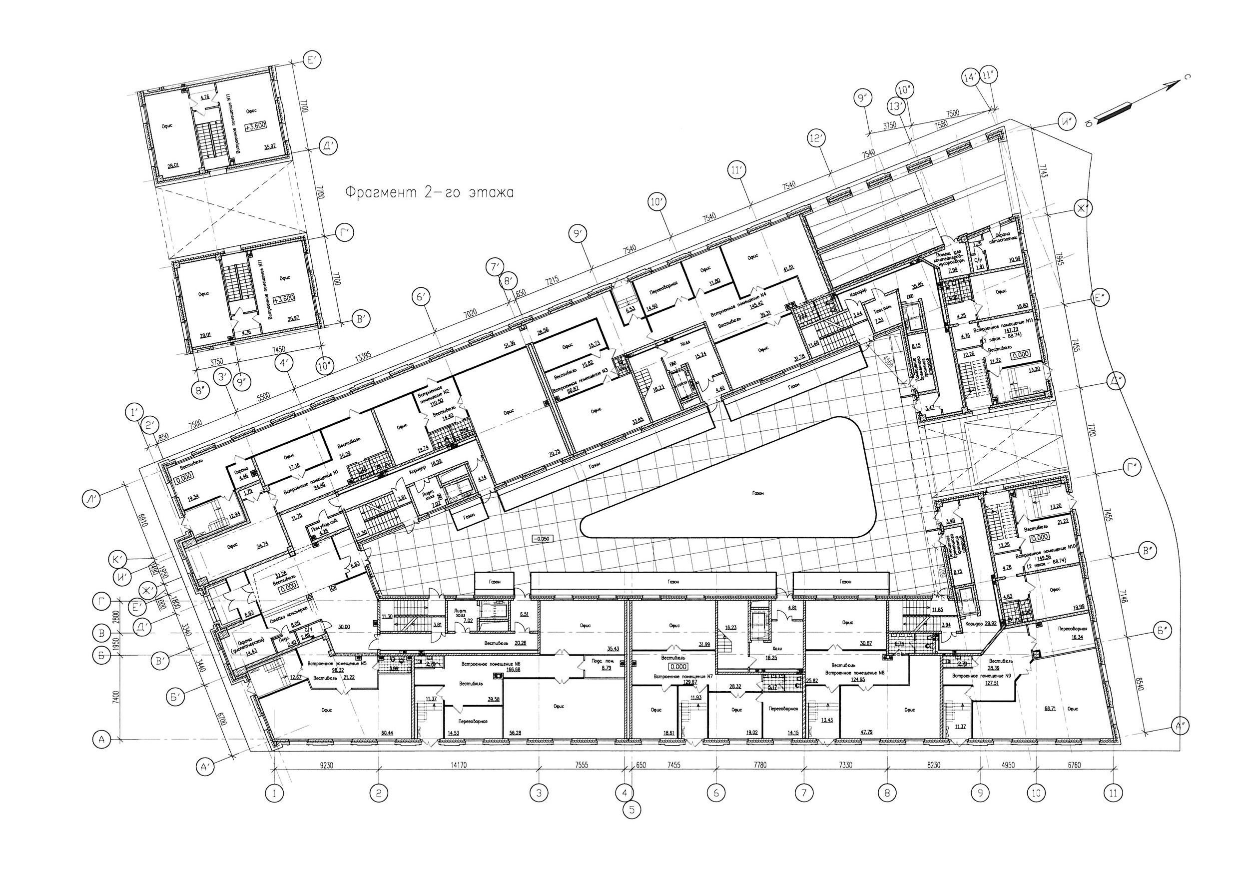
Plot Area
3 572 sq. m
Built-Up Area
3 149,0 sq. m
Gross Internal Area
20 731,82 sq. m
Number of Storeys
7 storeys
Number of Apartments
80
Head of the Authors Team
Evgeny Gerasimov
Chief Project Architect
Oleg Kaverin
Architects
Alexey Orlov, Marina Borisiuk, Dmitry Zaitsev
Chief Structural Engineer
Margarita Reznichenko
Structural Engineers
Dmitry Astapchik (Deputy Chief Design Engineer), Dmitry Grigoryev, Vladislav Antonov, Andrey Denisov
General Layout
Yelena Kuznetsova, Alexandra Titova, Irina Kharinskaya
Utilities
Edvans Co.
Chief Project Utility Engineer
Natalia Grazhdanova
Photos
Andrey Belimov-Guschin
Architectural Model
Yuriy Senatorov
Description
The dimensional and sculptural solution creates a relationship between Verona and the Renaissance palazzos of Northern Italy. The main façade finish is made of natural stone and emphasized by a porch with four Corinthian columns.
Read MoreReferences in Media
Evgeny Gerasimov: Every Site Possesses a Need for Change, You Have to Listen to the Whisper of the Place
On the Krestovsky Island, Evgeny Gerasimov’s architectural workshop has finished the construction of the Verona building. archi.ru has talked to the architect on his love toward creating historicist buildings and on how he manages to achieve this high a quality in such tasks.
Read at Archi.ru
Italians in Saint Petersburg: From Trezzini’s Palaces to Luxury Homes
Today, when Italian Renaissance architecture is mentioned, one inevitably thinks of thoroughness, high profile, and perfection of form; it would be a mistake not to take advantage of these associations when developing luxury projects. That is why it is no surprise that the LSR Group in collaboration with Evgeny Gerasimov and Partners Architectural Workshop, when working on their VERONA project, have turned to this style, which has been refined for as long as several centuries.
Read at DP.ru
Next Project