"Institutskiy, 16" Residental Complex Project
Project Owners
LEGENDA Intelligent Development
Address
16 Institutsky prospect, Saint Petersburg
Designed
2014-2020
Constructed
2017-2021
Plot Area
6305 sq. m
Built-Up Area
1852 sq. m
Gross Internal Area
31995 sq. m
Number of Storeys
20 storeys
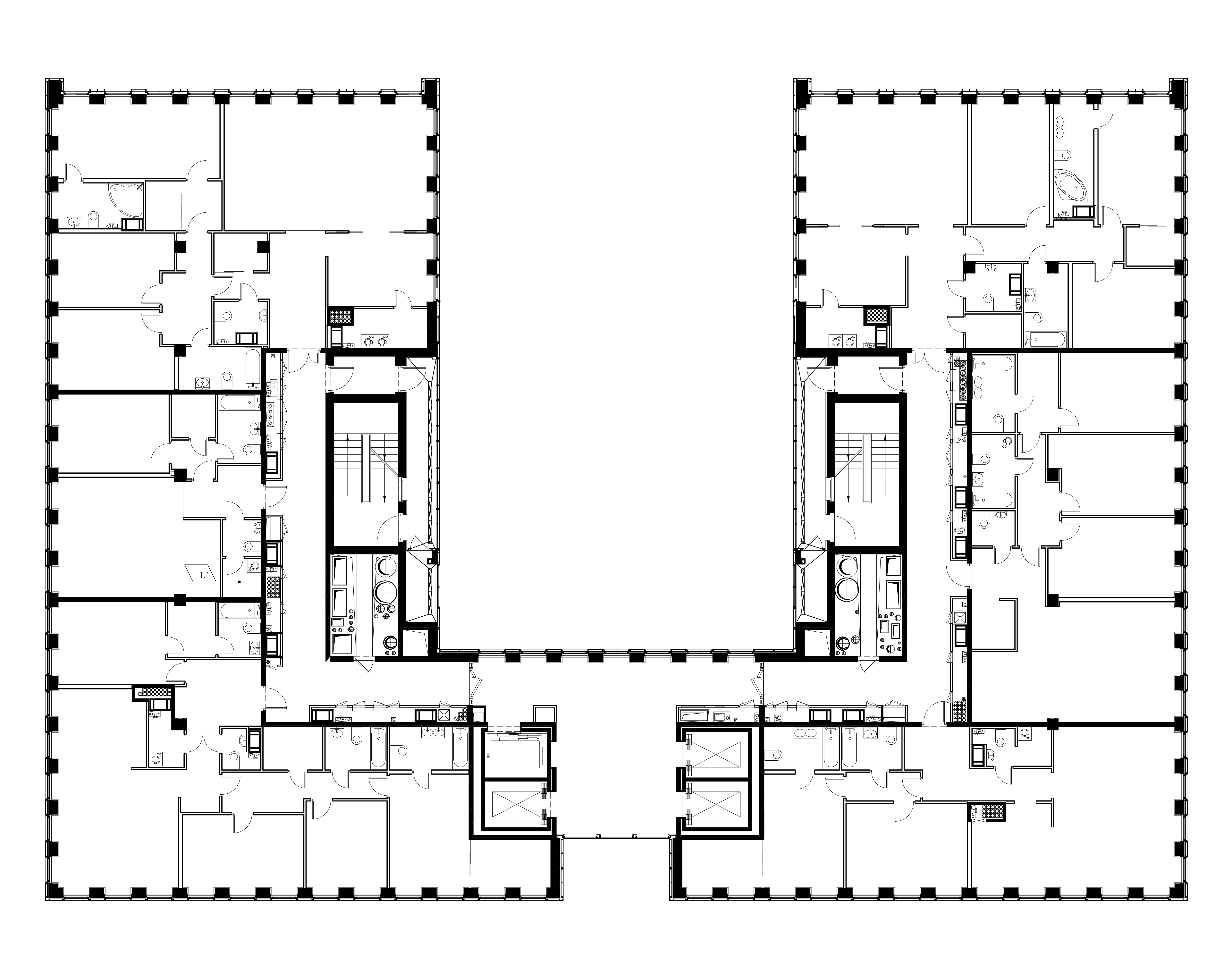
Number of Apartments
109
Head of the Authors Team
Evgeny Gerasimov
Chief Project Architect
Karen Smirnov
Architects
O. Staroseltseva (Leader of the Architects Group), S. Gadalova (Leader of the Architects Group), Ek. Osipova, D. Prudnikova, E. Basai, M. Gimnazdinov, A. Osipova
Chief Structural Engineer
Margarita Reznichenko
Structural Engineers
D. Astapchik (Deputy Chief Structural Engineer), Ye. Panteleeva (Leader of the Structural Engineers Group), Ye. Egorova (Leader of the Structural Engineers Group), D. Belichev, S. Nenashev, V. Antonov, A. Denisov, N. Guseva
General Layout
Ye. Kuznetsova, A. Titova
Utilities
OOO "Projektservice"
Chief Project Utility Engineer
Ye. Levchenko, I. Lukhina
Description
When designing the building, the architects used the Fifth Avenue of New York, the part where it borders the Central Park, as a primary source of inspiration. This is about the easily recognisable American art-deco with its strict lines, natural colours of the façades, a plenty of glass, floral and animalistic ornaments.
Read MoreReferences in Media
Gallery for the courier: modern improvement projects
Read at Archi.ru
Next Project