Жилой комплекс "Новый Невский" на Тележной ул., 32а
Заказчики
                        ООО «Тележная 32»
                        Адрес
                        Санкт-Петербург, Тележная улица, 32а
                        Проектирование
                        2009-2014
                        Строительство
                        2000-2021
                        Площадь участка
                        4 691 кв. м
                        Площадь застройки
                        4084 кв. м 
                        Общая площадь
                        20982,1 кв. м  
                        Этажность
                        8 этажей
                        Количество квартир
                        120
                        Руководитель коллектива
                Е.Л. Герасимов
                ГАП
                С.Д. Меркушева
                Архитекторы
                Е.А. Горюнова (рук. архитектурной группы), О.С. Леушина, Е.И.Янанец, Д.С. Щапов, А.Г. Гвоздик, Савченко И.Ю., Ольшанская О.Я., Яковлева А.Ю.
                Главный конструктор
                М.Я. Резниченко
                Конструкторы
                Т.С. Харинская, М.П Илиадорова., Д.О. Григорьев, К.А. Власова, С.П. Ненашев, Е.С. Яковлева, Н.В. Алексеева, М.Л. Ингер, Т.Л. Лебедева, Т.В. Белова, В.Ю. Антонов, А.С. Денисов
                Генплан
              Е.Н. Кузнецова, А.С. Титова, И.А. Харинская
              Описание
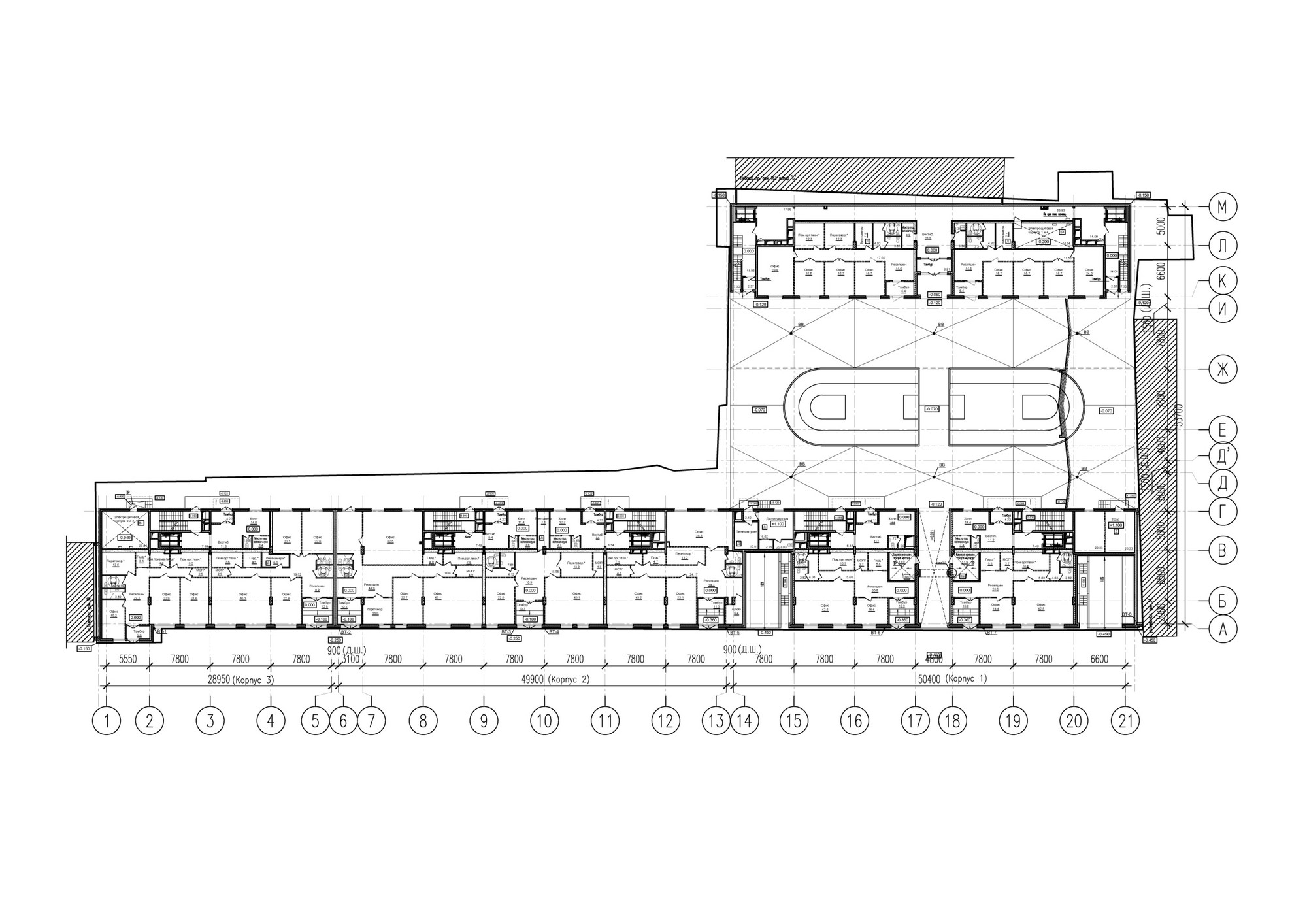
Здание жилого комплекса спроектировано для плотно застроенного района близ площади Александра Невского. Комплекс состоит из двух равновысотных зданий, соединённых между собой стилобатом подвального этажа. Основное внимание в проекте уделено решению фасадов.
Читать дальшеПресса о проекте
                Три в одном
                                    Дом на Тележной улице, построенный по проекту мастерской «Евгений Герасимов и партнеры» всего в паре шагов от Невского проспекта, визуально делится на три самостоятельных объекта. Так архитекторы сохраняют масштаб исторической улицы и преодолевают недостатки вытянутого участка.
                                    Читать на archi.ru
                                Следующий проект