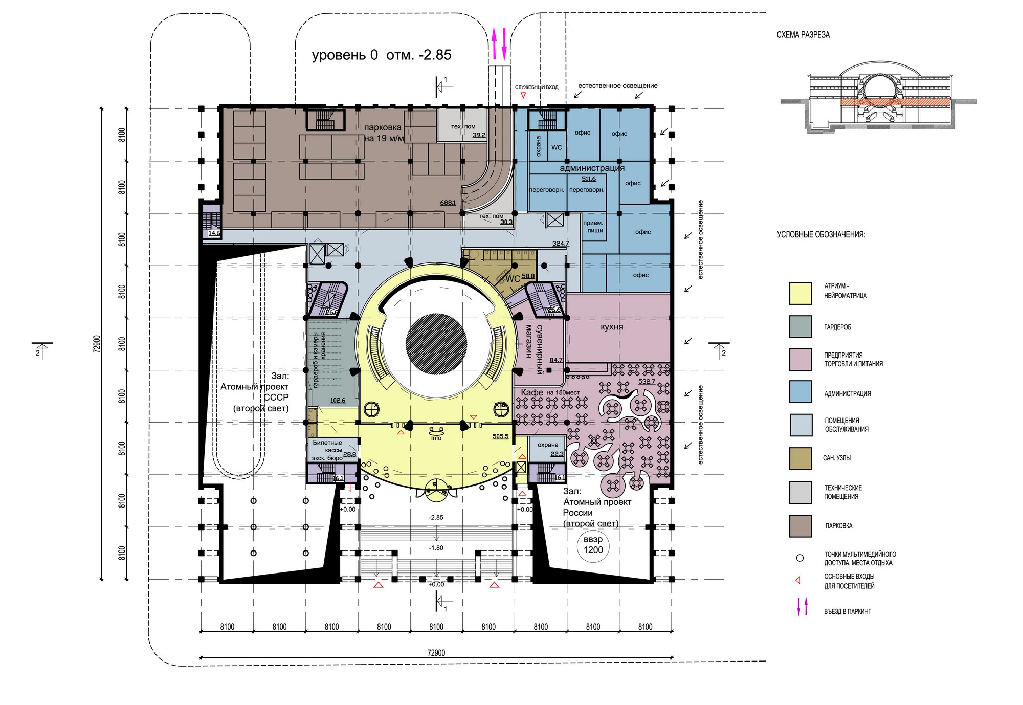
Концепция павильона атомной энергии на территории ВДНХ
Заказчики
Государственная корпорация по атомной энергии «Росатом»
Адрес
Москва, проспект Мира, 119, ВДНХ, павильон № 19
Проектирование
2015
Площадь застройки
5 484 кв. м
Общая площадь
20 659 кв. м
Строительный объем
125 725 куб. м
Руководитель коллектива
Виктор Флорианович Хиврич
ГАП
Минниев И.М.
Архитекторы
Хухка И.В., Янанец Е.И., Кузнецов М.И.
Главный конструктор
Резниченко М.Я.
Конструкторы
Антонов В.Ю., Пантелеева Е.А.
Описание
Проект-финалист Международного архитектурного конкурса
Главное в проекте – идея об инновационности атомной отрасли, которая основана на опыте предыдущих поколений. Было предложено комбинированное фасадное решение, сочетающее как отчётливо современные, так и контекстуальные мотивы.
Читать дальшеСледующий проект