Жилой комплекс «Миргородская, 1»
Заказчики
RBI
Адрес
Санкт-Петербург, Миргородская ул., 1
Проектирование
2020-2021
Площадь участка
13527 кв м
Площадь застройки
4646 кв м
Общая площадь
36090 кв м
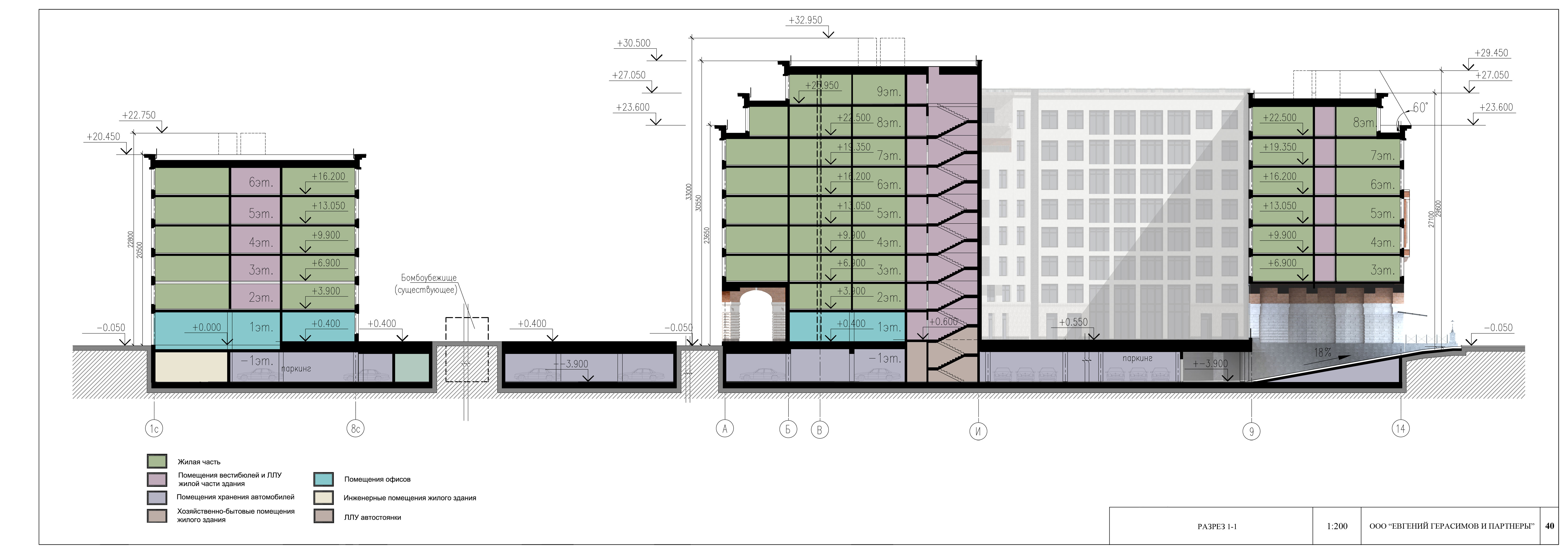
Этажность
5-6-7-8-9
Количество квартир
263
Руководитель коллектива
Е.Л. Герасимов
ГАП
Т.А. Комалдинова
Архитекторы
О.Л. Минниева (рук. группы), В.А. Махмудов, Я.Е. Серебрякова, Е.П. Апполонова, Г.Н. Шумская
Главный конструктор
М.Я. Резниченко
Конструкторы
Д.А. Астапчик (зам. гл. конструктора), А.С. Алимирзоев, М.Л. Ингер (рук. группы), Т.В. Белова, Е.Н. Быков, Д.В. Подгорный, А.С. Денисов (рук. группы), А.В. Стародубцев
Генплан
Е.Н. Кузнецова, А.С. Титова
Описание
Жилой дом на ул. Миргородская, 1 проектируется в редком для Санкт-Петербурга неорусском стиле. Пятиугольное в плане здание станет завершением площади вокруг Собора Феодоровской иконы Божией Матери, построенного в 1913 году архитектором Степаном Кричинским в стиле ростовских и ярославских храмов XVI-XVII веков.
Читать дальшеПресса о проекте
Оправа к бриллианту. Интервью с Евгением Герасимовым
В 2026 году петербургская архитектурная мастерская «Евгений Герасимов и партнеры» отмечает 35-летие своей деятельности. За эти годы возведено множество новых зданий и архитектурных ансамблей в исторической части Санкт-Петербурга и в новых районах. Мы беседуем с основателем и бессменным руководителем мастерской об особенностях петербургской архитектуры, о её церковной составляющей и о творческих планах.
Читать журнал "Вода Живая"
Снег на красном
Дом на Миргородской улице по проекту мастерской Евгения Герасимова завершает ансамбль площади вокруг Феодоровского собора и рассказывает три истории: о русской старине, классическом Петербурге и современной архитектуре в их контексте.
Читать на archi.ru
Следующий проект